Продается 2-комн. квартира, 43.46 м²
Россия, Санкт-Петербург, Коломяжский проспект, 4
Чёрная речка
8 мин.
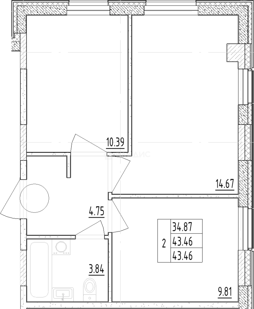
43.46 м²
Общая площадь
25.06 м²
Жилая площадь
9.81 м²
Площадь кухни
8 из 19
Этаж
Описание
В проекте предложено множество планировочных решений: в наличии квартиры, как классического типа, так и европланировки. Сдаются они с подчистовой отделкой и высотой потолков 2,63 метрова. Можно подобрать планировку с панорамным остеклением, а в отдельных лотах предусмотрено все для оборудования камина.
В комплексе апартаментов предусмотрена концепция двор без машин. На закрытой территории ведется постоянное видеонаблюдение. Благоустройство территории включает зоны отдыха, детские и спортивные площадки, а так же зону коворкинга на открытом воздухе. На территории комплекса предусмотрена собственная набережная оборудованная деревянными настилами и скамейками. Для владельцев автомобилей спроектирован подземный отапливаемый паркинг с прямым доступом на лифте.
Проект расположен в Приморском районе, на собственной набережной реки с прямым контактом с водой. В 7 минутах транспортом — Петроградская сторона, и далее — весь центр Петербурга. Всего в 10 минутах расположен выезд на ЗСД, 15 минут — Крестовский остров или Парк 300-летия. Метро «Черная речка» находится в 10 минутах пешком.
О квартире
Общая площадь
43.46 м²
Жилая площадь
25.06 м²
Площадь кухни
9.81 м²
Площадь комнат
14.67+10.39 м²
Высота потолков
2.63 м
Этаж
8
Окна выходят
На улицу
О доме
Год постройки
2025
Этажность
19
Материал постройки
Кирпично-монолитный
Материал перекрытий
Ж/б плиты
Отопление
Своя котельная
Парковка
Подземная
Расположение
Россия, Санкт-Петербург, Коломяжский проспект, 4
Чёрная речка
8 мин.
Пионерская
16 мин.
Старая Деревня
28 мин.
Лесная
4 мин.
Петроградская
4 мин.
Комендантский проспект
4 мин.
Крестовский остров
4 мин.
Удельная
4 мин.
Ипотечный калькулятор
Заполните 1 анкету — получите предложения от десятков банков на специальных условиях
Программа ипотеки
Стоимость жилья, ₽
Первый взнос, ₽
Срок кредита
от 5.75%
Ставка
от 61 101 ₽
Платеж в месяц
Расчёт носит информационный характер и не является публичной офертой
Похожие объекты





Студия, 39,1 м², 3/19 эт.
Чёрная речка
8 мин.




2-комн. квартира, 48,9 м², 11/19 эт.
Чёрная речка
8 мин.





2-комн. квартира, 43,5 м², 11/19 эт.
Чёрная речка
8 мин.



2-комн. квартира, 43,5 м², 12/19 эт.
Чёрная речка
8 мин.
Консультант по новостройкам
9 712 224 ₽
223 476 ₽/м²






