Продается 2-комн. квартира, 44.39 м²
Россия, Санкт-Петербург, Пушкинский район, посёлок Шушары
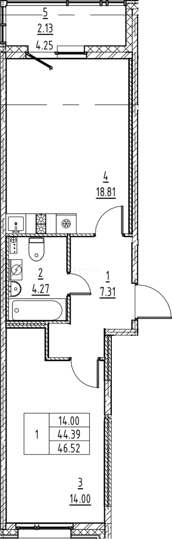
44.39 м²
Общая площадь
14 м²
Жилая площадь
18.81 м²
Площадь кухни
2 из 12
Этаж
Описание
В проекте представлено большое количество планировочных решений — от студий до просторных 3х-комнатных квартир. Все лоты сдаются с подчистовой отделкой, высотой потолков 2,72 метра, дополнительно выполнена шумоизоляция внутренних перегородок и межэтажных перекрытий.
Территория комплекса благоустроена и закрыта от автомобилей, ведется видеонаблюдение, имеется собственный пост охраны. В жилом комплексе предусмотрен детский клуб, оборудованный для игр, творчества и организации детских мероприятий. Также на территории находятся площадки для занятий спортом и места для отдыха.
Жилой комплекс расположен в районе с хорошо развитой инфраструктурой — в пешей доступности имеется все необходимое: продовольственные магазины, школы, детские сады, торговые центры. Дорога до станции метро «Купчино» занимает 15 минут на автомобиле.
О квартире
Общая площадь
44.39 м²
Жилая площадь
14 м²
Площадь кухни
18.81 м²
Площадь комнат
14 м²
Высота потолков
2.7199999999999998 м
Этаж
2
Окна выходят
На улицу
О доме
Год постройки
2025
Этажность
12
Материал постройки
Кирпично-монолитный
Материал перекрытий
Монолитные
Отопление
Центральное
Парковка
Подземная
Расположение
Россия, Санкт-Петербург, Пушкинский район, посёлок Шушары
Ипотечный калькулятор
Заполните 1 анкету — получите предложения от десятков банков на специальных условиях
Программа ипотеки
Стоимость жилья, ₽
Первый взнос, ₽
Срок кредита
от 5.75%
Ставка
от 69 080 ₽
Платеж в месяц
Расчёт носит информационный характер и не является публичной офертой
Похожие объекты





2-комн. квартира, 43,9 м², 7/12 эт.




2-комн. квартира, 43,9 м², 6/12 эт.





2-комн. квартира, 43,9 м², 9/12 эт.



2-комн. квартира, 47,2 м², 3/12 эт.
Звёздная
4 мин.
Консультант по новостройкам
10 980 612 ₽
247 367 ₽/м²







