Продается 1-комн. квартира, 35.11 м²
Россия, Санкт-Петербург, жилой комплекс Аквилон Ливз 2
Звёздная
15 мин.
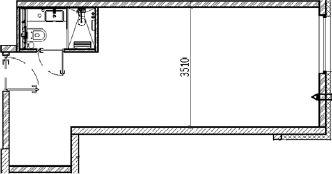
35.11 м²
Общая площадь
16.46 м²
Жилая площадь
10.08 м²
Площадь кухни
3 из 13
Этаж
Описание
В жилом комплексе предложено множество планировочных решений: в наличии квартиры, как классического типа, так и европланировки. Квартиры сдаются с умной системой «inHOME 3.0», улучшенной шумоизоляцией Sound stop,есть планировки с террасами. Отделка — подчистовая «White box», возможен заказ чистовой отделки.
Благоустройство двора выполнено от московсковского бюро Megabudka по концепции «Двор без машин». В проекте предусмотрены разновозрастные детские площадки, зоны отдыха, зоны workout, бесплатный детский клуб «Аквилон KIDS», свой детский сад и школа. Территория комплекса огорожена по периметру, за охрану комплекса отвечают множество видеокамер и круглосуточная охрана. Для владельцев автомобилей предусмотрены подземный паркинг и стоянка. В подвальном этаже жилых корпусов предусмотрены индивидуальные кладовые (сити-боксы).
Жилой комплекс находится в Московском районе. В пешей доступности находятся детские сады,школы, фитнес центры, кафе, магазины, сквер Раисы Штрейс, сад Дубовая Роща. До Пулковского парка и до метро «Звездная» — 15 минут пешком.
О квартире
Общая площадь
35.11 м²
Жилая площадь
16.46 м²
Площадь кухни
10.08 м²
Площадь комнат
16.46 м²
Высота потолков
2.73 м
Этаж
3
Окна выходят
На улицу
О доме
Год постройки
2025
Этажность
13
Материал постройки
Кирпично-монолитный
Материал перекрытий
Монолитные
Отопление
Центральное
Парковка
Подземная
Расположение
Россия, Санкт-Петербург, жилой комплекс Аквилон Ливз 2
Звёздная
15 мин.
Купчино
28 мин.
Московская
4 мин.
Дунайская
7 мин.
Парк Победы
7 мин.
Ленинский проспект
7 мин.
Проспект Славы
7 мин.
Проспект Ветеранов
8 мин.
Ипотечный калькулятор
Заполните 1 анкету — получите предложения от десятков банков на специальных условиях
Программа ипотеки
Стоимость жилья, ₽
Первый взнос, ₽
Срок кредита
от 5.75%
Ставка
от 82 068 ₽
Платеж в месяц
Расчёт носит информационный характер и не является публичной офертой
Похожие объекты








1-комн. квартира, 38,3 м², 14/19 эт.
Московская
14 мин.








1-комн. квартира, 38,3 м², 15/19 эт.
Московская
14 мин.








1-комн. квартира, 38,6 м², 15/19 эт.
Московская
14 мин.








1-комн. квартира, 38,3 м², 15/19 эт.
Московская
14 мин.
Консультант по новостройкам
13 045 065 ₽
371 549 ₽/м²









