Продается 1-комн. квартира, 39.7 м²
Россия, Санкт-Петербург, Варфоломеевская улица
Ломоносовская
16 мин.
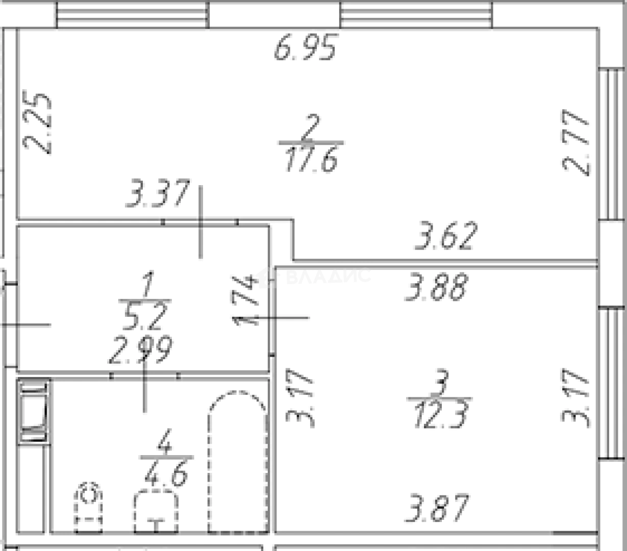
39.7 м²
Общая площадь
17.6 м²
Жилая площадь
12.3 м²
Площадь кухни
2 из 13
Этаж
Описание
В данном жилом комплексе предложены студии, однокомнатные и двухкомнатные апартаменты общей площадью от 23 до 56 кв.метров. Они сдаются с чистовой отделкой. Также в апартаментах спроектированы большие окна, высота которых равна 185 см, а высота расположения окна от пола — 40 см.
На первом этаже размещены коммерческие объекты: ресторан, фитнес-клуб, химчистка и прачечная. Комплекс находится под охраной и видеонаблюдением.
Жилой комплекс расположен в 150 метрах от Ивановского карьера. После обширной реновации на берегу водоема появились оборудованные зоны для отдыха и занятий спорта с тренажерами и скейт площадки, дорожки для бега и велосипедных прогулок. В районе развитая инфраструктура: в пешей доступности магазины, школа, детский сад. Выезд на КАД расположен в 20 минутах транспортом. Станция метро «Ломоносовская» в 20 минутах пешком.
О квартире
Общая площадь
39.7 м²
Жилая площадь
17.6 м²
Площадь кухни
12.3 м²
Площадь комнат
17.6 м²
Высота потолков
2.55 м
Этаж
2
Окна выходят
На улицу
О доме
Год постройки
2023
Этажность
13
Материал постройки
Монолитный
Материал перекрытий
Монолитные
Отопление
Центральное
Парковка
Наземная
Расположение
Россия, Санкт-Петербург, Варфоломеевская улица
Ломоносовская
16 мин.
Елизаровская
24 мин.
Международная
29 мин.
Бухарестская
4 мин.
Проспект Славы
4 мин.
Пролетарская
5 мин.
Волковская
6 мин.
Обухово
6 мин.
Ипотечный калькулятор
Заполните 1 анкету — получите предложения от десятков банков на специальных условиях
Программа ипотеки
Стоимость жилья, ₽
Первый взнос, ₽
Срок кредита
от 5.75%
Ставка
от 52 137 ₽
Платеж в месяц
Расчёт носит информационный характер и не является публичной офертой
Похожие объекты











2-комн. квартира, 40,9 м², 5/13 эт.
Ломоносовская
16 мин.











2-комн. квартира, 40,7 м², 6/13 эт.
Ломоносовская
16 мин.









2-комн. квартира, 44,5 м², 10/13 эт.
Ломоносовская
16 мин.











2-комн. квартира, 41,4 м², 3/13 эт.
Ломоносовская
16 мин.
Консультант по новостройкам
8 287 359 ₽
208 750 ₽/м²












