Продается Студия, 37.1 м²
Россия, Санкт-Петербург, улица Ивана Фомина, 8
Проспект Просвещения
9 мин.
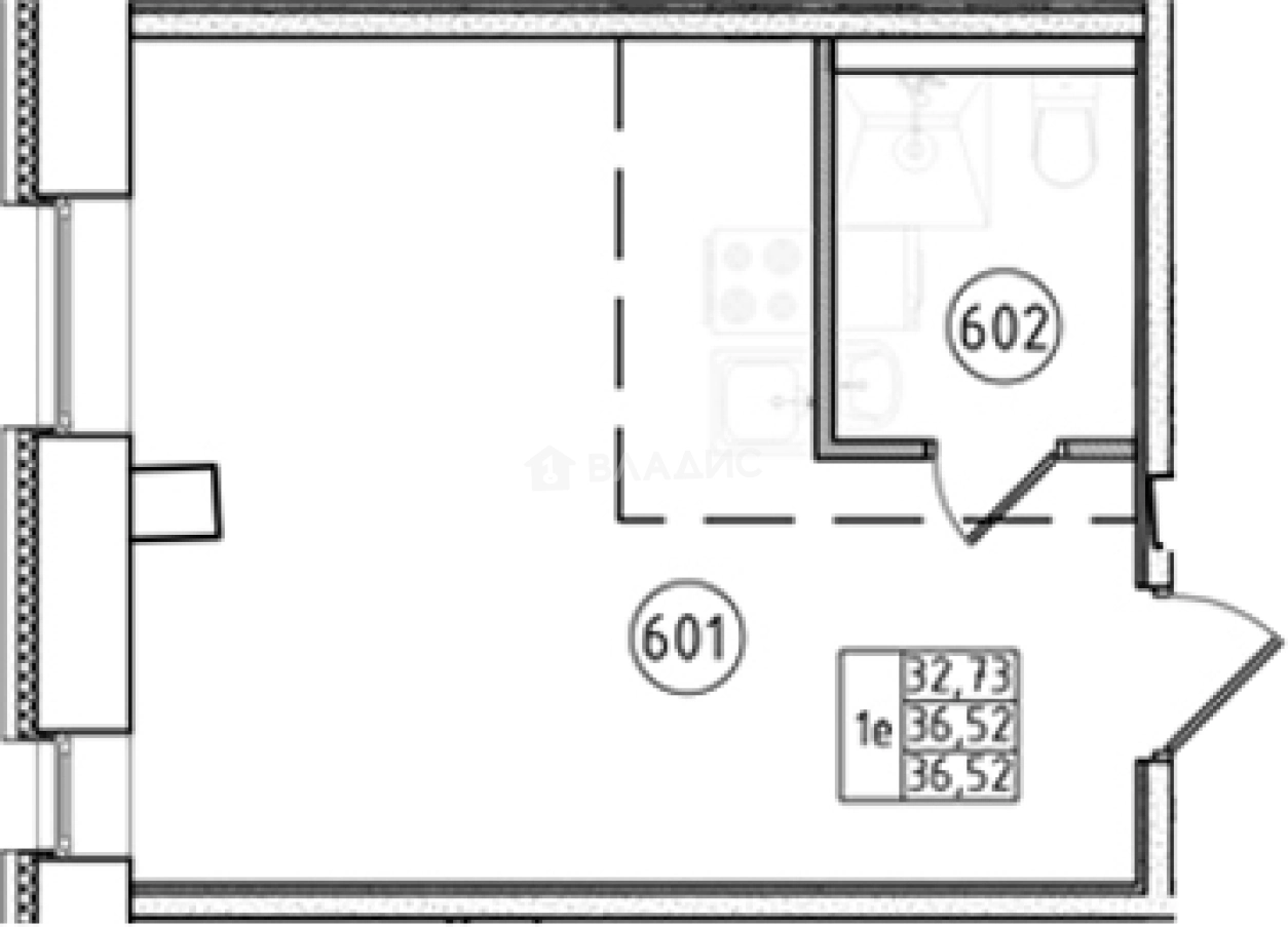
37.1 м²
Общая площадь
24.32 м²
Жилая площадь
6 из 9
Этаж
Описание
Фонд апартаментов комплекса представлен студиями и двухуровневыми квартирами. В зависимости от секции и расположения, в помещениях установлены стандартные или увеличенные окна. Высота потолков варьируется от 2,8 метров в одноуровневых вариантах до 4,6 метров для опций со вторым светом. Квартиры идут с чистовой отделкой, а санузлы выложены плиткой из керамогранита.
На территории апарт-отеля создана комфортная инфраструктура для жителей: работает авторская кофейня, оборудованы фотозоны и арт-объекты. Для обеспечения комфорта и безопасности предусмотрен круглосуточный консьерж-сервис, а за эксплуатацию отвечает профессиональная управляющая компания. Во дворе находится наземная стоянка для автомобилей.
Проект расположен в Выборгском районе, на месте бывшей станции автоматической телефонной связи (АТС). В пределах 5–10 минут пешком доступны школы, детские сады, парки, кафе, рестораны и супермаркеты. До станции метро Проспект Просвещения можно добраться за 15 минут пешком, а до центра города — за 1 час транспортом.
О квартире
Общая площадь
37.1 м²
Жилая площадь
24.32 м²
Площадь комнат
24.32 м²
Высота потолков
4.6 м
Этаж
6
Окна выходят
На улицу
О доме
Год постройки
2026
Этажность
9
Материал постройки
Кирпичный
Парковка
Наземная
Расположение
Россия, Санкт-Петербург, улица Ивана Фомина, 8
Проспект Просвещения
9 мин.
Озерки
21 мин.
Парнас
27 мин.
Удельная
6 мин.
Гражданский проспект
6 мин.
Политехническая
7 мин.
Академическая
7 мин.
Девяткино
8 мин.
Ипотечный калькулятор
Заполните 1 анкету — получите предложения от десятков банков на специальных условиях
Программа ипотеки
Стоимость жилья, ₽
Первый взнос, ₽
Срок кредита
от 5.75%
Ставка
от 54 849 ₽
Платеж в месяц
Расчёт носит информационный характер и не является публичной офертой
Похожие объекты







Студия, 37,6 м², 6/9 эт.
Проспект Просвещения
9 мин.







Студия, 38,0 м², 3/9 эт.
Проспект Просвещения
9 мин.







Студия, 35,2 м², 6/9 эт.
Проспект Просвещения
9 мин.







Студия, 39,4 м², 5/9 эт.
Проспект Просвещения
9 мин.
Консультант по новостройкам
8 718 500 ₽
235 000 ₽/м²








