Продается 1-комн. квартира, 30.02 м²
Россия, Санкт-Петербург, ЖК Аурум
Выборгская
30 мин.
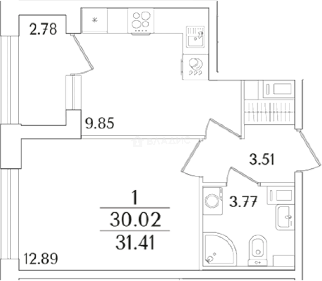
30.02 м²
Общая площадь
12.89 м²
Жилая площадь
9.85 м²
Площадь кухни
16 из 17
Этаж
Описание
В проекте представлен широкий выбор планировок: студии и квартиры с 1–3 спальнями, в том числе европланировки. Доступны квартиры с кухнями-гостиными, мастер-спальнями, гардеробными и просторными лоджиями. Высота потолков варьируется от 2,74 до 3,04 м. Помещения идут без отделки, в подчистовом или чистовом исполнении — в зависимости от корпуса. Все балконы и лоджии остеклены системой алюминиевых профилей с одинарным стеклом. Возможен дозаказ чистовой отделки.
На территории комплекса организован закрытый двор без машин с авторским благоустройством. Для жителей предусмотрены просторный центральный двор-плейхаб с разными форматами активностей, беговая дорожка, сад непрерывного цветения, настольный теннис, детская площадка и зона для стритбола. Владельцам авто доступен подземный отапливаемый паркинг, также обустроены кладовые, колясочные и помещения под коммерцию.
Проект расположен на севере Санкт-Петербурга, в Калининском районе. В пределах 15 минут пешком находятся парк Академика Сахарова, Кондратьевский и Любашинский сады. В радиусе 1,5 км доступно 16 детских садов, 12 школ, 7 колледжей и вузов, 18 поликлиник и больниц, 25 спортивных залов и фитнес-клубов, торговые центры. До КАД можно добраться за 15 минут транспортом по Пискаревскому проспекту, а до аэропорта Пулково — за 40 минут. В радиусе 10–20 минут транспортом — Финляндский, Ладожский и Московский вокзалы.
О квартире
Общая площадь
30.02 м²
Жилая площадь
12.89 м²
Площадь кухни
9.85 м²
Площадь комнат
12.89 м²
Высота потолков
2.74 м
Этаж
16
Окна выходят
На улицу
О доме
Год постройки
2029
Этажность
17
Материал постройки
Кирпично-монолитный
Парковка
Подземная
Расположение
Россия, Санкт-Петербург, ЖК Аурум
Выборгская
30 мин.
Лесная
4 мин.
Площадь Мужества
4 мин.
Площадь Ленина
4 мин.
Политехническая
5 мин.
Чернышевская
6 мин.
Академическая
6 мин.
Петроградская
7 мин.
Ипотечный калькулятор
Заполните 1 анкету — получите предложения от десятков банков на специальных условиях
Программа ипотеки
Стоимость жилья, ₽
Первый взнос, ₽
Срок кредита
от 5.75%
Ставка
от 77 716 ₽
Платеж в месяц
Расчёт носит информационный характер и не является публичной офертой
Похожие объекты







1-комн. квартира, 34,3 м², 5/18 эт.
Выборгская
29 мин.







1-комн. квартира, 34,3 м², 4/18 эт.
Выборгская
29 мин.







1-комн. квартира, 34,2 м², 15/18 эт.
Выборгская
29 мин.







1-комн. квартира, 34,3 м², 11/18 эт.
Выборгская
29 мин.
Консультант по новостройкам
12 353 290 ₽
411 502 ₽/м²













