Продается 3-комн. квартира, 58.64 м²
Россия, Санкт-Петербург, проспект Маршала Блюхера
Выборгская
28 мин.
58.64 м²
Общая площадь
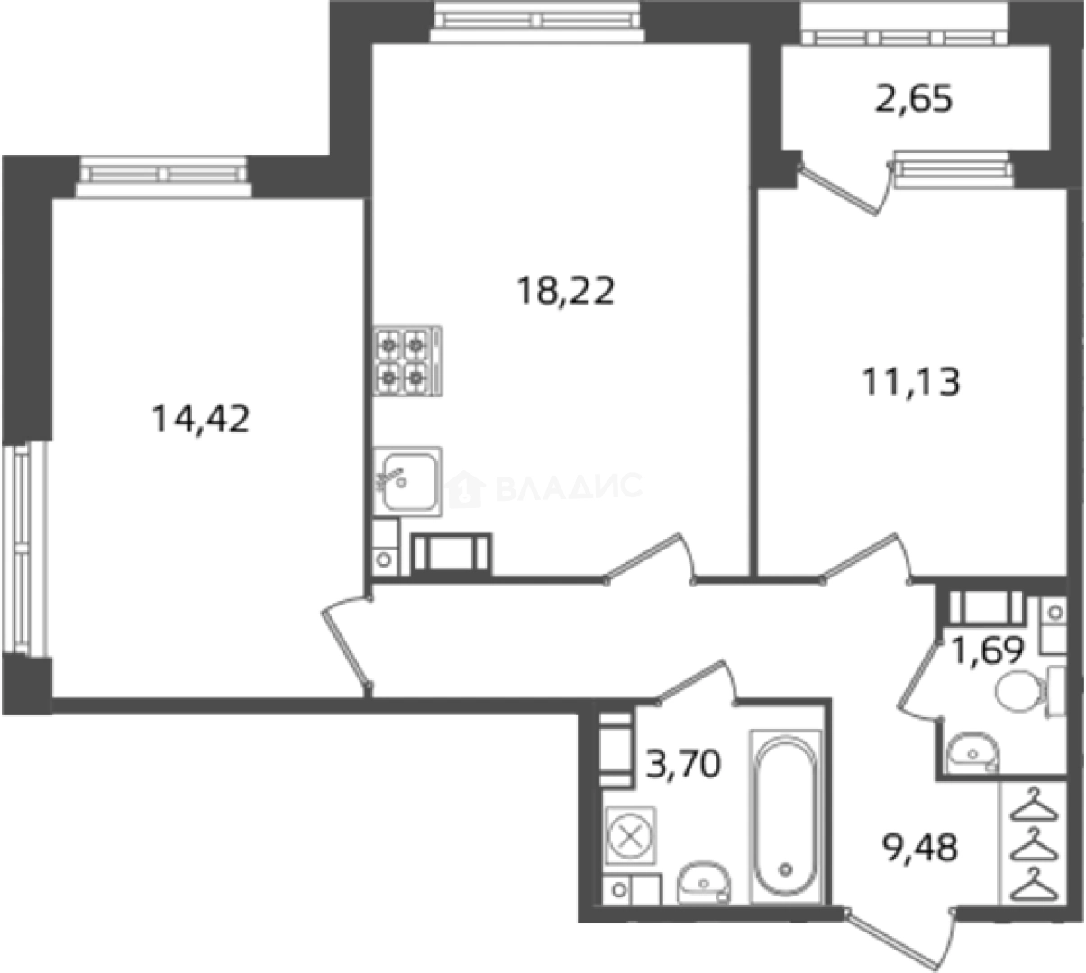
25.55 м²
Жилая площадь
18.22 м²
Площадь кухни
8 из 18
Этаж
Описание
В комплексе представлены различные планировочные решения, включая студии и трехкомнатные квартиры с высокими потолками и большими окнами. Приватность обеспечивается закрытым двором, а безопасность - системами видеонаблюдения и контроля доступа. Предусмотрен подземный паркинг на 628 мест, кладовые помещения и детский сад на 120 мест.
Квартал "Б15" находится на Кондратьевском проспекте, рядом с парком Академика Сахарова и в 10 минутах от метро "Лесная". В радиусе 1 км расположены несколько парков и множество ресторанов и салонов красоты.
О квартире
Общая площадь
58.64 м²
Жилая площадь
25.55 м²
Площадь кухни
18.22 м²
Площадь комнат
14.42+11.13 м²
Высота потолков
2.7 м
Этаж
8
Окна выходят
На улицу
О доме
Год постройки
2026
Этажность
18
Материал постройки
Монолитный
Материал перекрытий
Монолитные
Отопление
Центральное
Парковка
Подземная
Расположение
Россия, Санкт-Петербург, проспект Маршала Блюхера
Выборгская
28 мин.
Лесная
30 мин.
Площадь Мужества
4 мин.
Площадь Ленина
4 мин.
Политехническая
5 мин.
Академическая
6 мин.
Чернышевская
6 мин.
Петроградская
6 мин.
Ипотечный калькулятор
Заполните 1 анкету — получите предложения от десятков банков на специальных условиях
Программа ипотеки
Стоимость жилья, ₽
Первый взнос, ₽
Срок кредита
от 5.75%
Ставка
от 123 622 ₽
Платеж в месяц
Расчёт носит информационный характер и не является публичной офертой
Похожие объекты





2-комн. квартира, 52,8 м², 3/17 эт.
Выборгская
29 мин.







3-комн. квартира, 59,7 м², 8/17 эт.
Выборгская
28 мин.







3-комн. квартира, 59,7 м², 9/17 эт.
Выборгская
28 мин.







3-комн. квартира, 59,7 м², 7/17 эт.
Выборгская
28 мин.
Консультант по новостройкам
19 650 264 ₽
335 100 ₽/м²








