Продается 3-комн. квартира, 58.64 м²
Россия, Санкт-Петербург, проспект Маршала Блюхера
Выборгская
29 мин.
58.64 м²
Общая площадь
25.55 м²
Жилая площадь
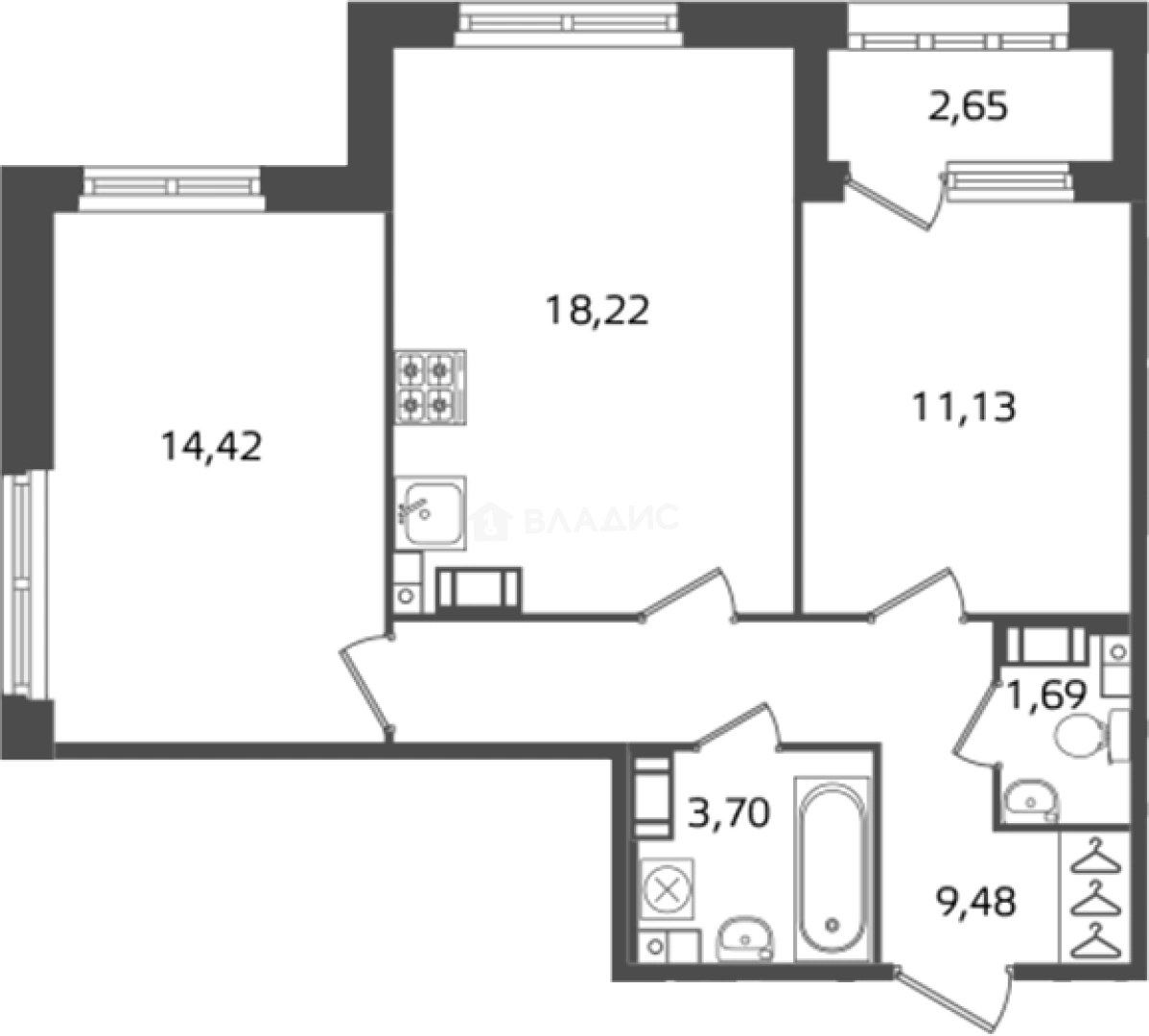
18.22 м²
Площадь кухни
11 из 17
Этаж
Описание
В комплексе представлены различные планировочные решения, включая студии и трехкомнатные квартиры с высокими потолками и большими окнами. Приватность обеспечивается закрытым двором, а безопасность - системами видеонаблюдения и контроля доступа. Предусмотрен подземный паркинг на 628 мест, кладовые помещения и детский сад на 120 мест.
Квартал "Б15" находится на Кондратьевском проспекте, рядом с парком Академика Сахарова и в 10 минутах от метро "Лесная". В радиусе 1 км расположены несколько парков и множество ресторанов и салонов красоты.
О квартире
Общая площадь
58.64 м²
Жилая площадь
25.55 м²
Площадь кухни
18.22 м²
Площадь комнат
11.13+14.42 м²
Высота потолков
2.7 м
Этаж
11
Окна выходят
На улицу
О доме
Год постройки
2026
Этажность
17
Материал постройки
Кирпично-монолитный
Материал перекрытий
Монолитные
Отопление
Центральное
Расположение
Россия, Санкт-Петербург, проспект Маршала Блюхера
Выборгская
29 мин.
Лесная
3 мин.
Площадь Мужества
4 мин.
Площадь Ленина
4 мин.
Политехническая
5 мин.
Академическая
6 мин.
Чернышевская
6 мин.
Петроградская
7 мин.
Ипотечный калькулятор
Заполните 1 анкету — получите предложения от десятков банков на специальных условиях
Программа ипотеки
Стоимость жилья, ₽
Первый взнос, ₽
Срок кредита
от 5.75%
Ставка
от 123 695 ₽
Платеж в месяц
Расчёт носит информационный характер и не является публичной офертой
Похожие объекты







3-комн. квартира, 61,8 м², 3/18 эт.
Выборгская
28 мин.







3-комн. квартира, 60,4 м², 4/18 эт.
Выборгская
29 мин.







3-комн. квартира, 63,9 м², 6/18 эт.
Выборгская
29 мин.





3-комн. квартира, 58,6 м², 4/17 эт.
Выборгская
29 мин.
Консультант по новостройкам
19 661 992 ₽
335 300 ₽/м²












