Продается 3-комн. квартира, 68.28 м²
Россия, Санкт-Петербург, территория Полюстрово, жилой квартал Б15
Выборгская
29 мин.
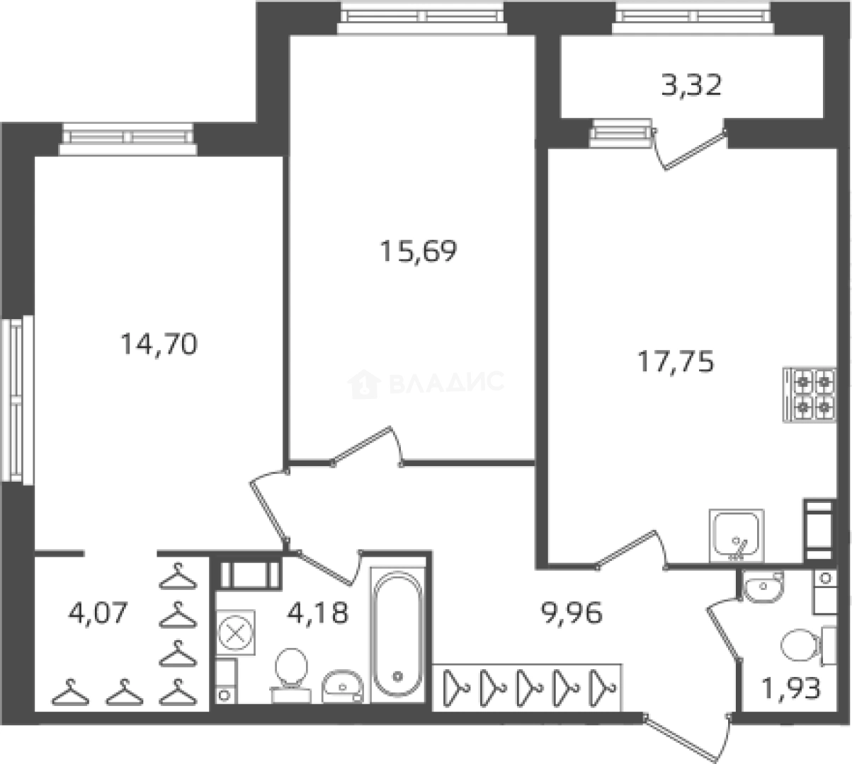
68.28 м²
Общая площадь
30.39 м²
Жилая площадь
17.75 м²
Площадь кухни
7 из 18
Этаж
Описание
В комплексе представлены различные планировочные решения, включая студии и трехкомнатные квартиры с высокими потолками и большими окнами. Приватность обеспечивается закрытым двором, а безопасность - системами видеонаблюдения и контроля доступа. Предусмотрен подземный паркинг на 628 мест, кладовые помещения и детский сад на 120 мест.
Квартал "Б15" находится на Кондратьевском проспекте, рядом с парком Академика Сахарова и в 10 минутах от метро "Лесная". В радиусе 1 км расположены несколько парков и множество ресторанов и салонов красоты.
Свернуть
О квартире
Общая площадь
68.28 м²
Жилая площадь
30.39 м²
Площадь кухни
17.75 м²
Площадь комнат
14.7+15.69 м²
Высота потолков
2.7 м
Этаж
7
Окна выходят
На улицу
О доме
Год постройки
2026
Этажность
18
Материал постройки
Монолитный
Материал перекрытий
Монолитные
Отопление
Центральное
Парковка
Подземная
Расположение
Россия, Санкт-Петербург, территория Полюстрово, жилой квартал Б15
Выборгская
29 мин.
Лесная
4 мин.
Площадь Мужества
4 мин.
Площадь Ленина
4 мин.
Политехническая
5 мин.
Академическая
6 мин.
Чернышевская
6 мин.
Петроградская
7 мин.
Ипотечный калькулятор
Заполните 1 анкету — получите предложения от десятков банков на специальных условиях
Программа ипотеки
Стоимость жилья, ₽
Первый взнос, ₽
Срок кредита
от 5.75%
Ставка
от 136 384 ₽
Платеж в месяц
Расчёт носит информационный характер и не является публичной офертой
Похожие объекты







3-комн. квартира, 61,8 м², 3/18 эт.
Выборгская
28 мин.





3-комн. квартира, 68,3 м², 9/18 эт.
Выборгская
29 мин.





3-комн. квартира, 68,7 м², 2/18 эт.
Выборгская
29 мин.







3-комн. квартира, 60,4 м², 4/18 эт.
Выборгская
29 мин.
Консультант по новостройкам
21 678 900 ₽
317 500 ₽/м²









