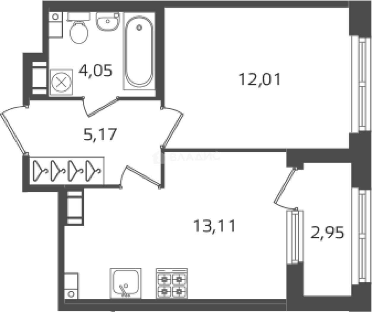
Продается 1-комн. квартира, 34.34 м²
Россия, Санкт-Петербург, территория Полюстрово, жилой квартал Б15
Выборгская
29 мин.
34.34 м²
Общая площадь
12.01 м²
Жилая площадь
13.11 м²
Площадь кухни
5 из 18
Этаж
Описание
В комплексе представлены различные планировочные решения, включая студии и трехкомнатные квартиры с высокими потолками и большими окнами. Приватность обеспечивается закрытым двором, а безопасность - системами видеонаблюдения и контроля доступа. Предусмотрен подземный паркинг на 628 мест, кладовые помещения и детский сад на 120 мест.
Квартал "Б15" находится на Кондратьевском проспекте, рядом с парком Академика Сахарова и в 10 минутах от метро "Лесная". В радиусе 1 км расположены несколько парков и множество ресторанов и салонов красоты.
Свернуть
О квартире
Общая площадь
34.34 м²
Жилая площадь
12.01 м²
Площадь кухни
13.11 м²
Площадь комнат
12.01 м²
Высота потолков
2.7 м
Этаж
5
Окна выходят
На улицу
О доме
Год постройки
2026
Этажность
18
Материал постройки
Монолитный
Материал перекрытий
Монолитные
Отопление
Центральное
Парковка
Подземная
Расположение
Россия, Санкт-Петербург, территория Полюстрово, жилой квартал Б15
Выборгская
29 мин.
Лесная
4 мин.
Площадь Мужества
4 мин.
Площадь Ленина
4 мин.
Политехническая
5 мин.
Академическая
6 мин.
Чернышевская
6 мин.
Петроградская
7 мин.
Ипотечный калькулятор
Заполните 1 анкету — получите предложения от десятков банков на специальных условиях
Программа ипотеки
Стоимость жилья, ₽
Первый взнос, ₽
Срок кредита
от 5.75%
Ставка
от 73 236 ₽
Платеж в месяц
Расчёт носит информационный характер и не является публичной офертой
Похожие объекты









1-комн. квартира, 35,3 м², 11/18 эт.
Выборгская
28 мин.






1-комн. квартира, 34,5 м², 11/18 эт.
Выборгская
29 мин.







1-комн. квартира, 35,4 м², 10/18 эт.
Выборгская
29 мин.







1-комн. квартира, 34,3 м², 4/18 эт.
Выборгская
29 мин.
Консультант по новостройкам
11 641 260 ₽
339 000 ₽/м²








