Продается 2-комн. квартира, 36.5 м²
Россия, Санкт-Петербург, Красногвардейский район, муниципальный округ Большая Охта, жилой комплекс ЛСР Большая Охта
Ладожская
19 мин.
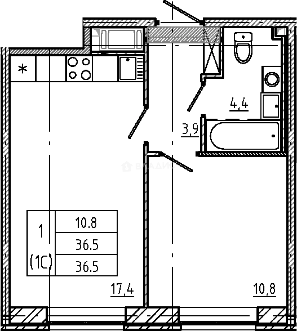
36.5 м²
Общая площадь
10.8 м²
Жилая площадь
17.4 м²
Площадь кухни
12 из 12
Этаж
Описание
На территории комплекса предусмотрены пространства для комфортного времяпровождения: лаунж зоны, детский и спортивные площадки, зоны для прогулок, а также коворкинги. Также особо внимание уделяется безопасности комплекса. ЖК и внутренний двор оснащены системами видеонаблюдения.
В ЖК "Большая охта" предусмотрены детский сады и школы, а также большой кабинет педиатра внутри дома.
О квартире
Общая площадь
36.5 м²
Жилая площадь
10.8 м²
Площадь кухни
17.4 м²
Площадь комнат
10.8 м²
Высота потолков
3 м
Этаж
12
Окна выходят
На улицу
О доме
Год постройки
2025
Этажность
12
Материал постройки
Кирпично-монолитный
Материал перекрытий
Монолитные
Отопление
Центральное
Парковка
Подземная
Расположение
Россия, Санкт-Петербург, Красногвардейский район, муниципальный округ Большая Охта, жилой комплекс ЛСР Большая Охта
Ладожская
19 мин.
Новочеркасская
23 мин.
Проспект Большевиков
5 мин.
Чернышевская
5 мин.
Площадь Восстания
6 мин.
Площадь Ленина
6 мин.
Ипотечный калькулятор
Заполните 1 анкету — получите предложения от десятков банков на специальных условиях
Программа ипотеки
Стоимость жилья, ₽
Первый взнос, ₽
Срок кредита
от 5.75%
Ставка
от 81 597 ₽
Платеж в месяц
Расчёт носит информационный характер и не является публичной офертой
Похожие объекты


Свободная планировка, 35,4 м², 6/6 эт.
Площадь Восстания
12 мин.


Свободная планировка, 41,8 м², 6/6 эт.
Площадь Восстания
12 мин.








Студия, 31,2 м², 12/14 эт.
Новочеркасская
12 мин.








Студия, 31,2 м², 11/14 эт.
Новочеркасская
12 мин.
Консультант по новостройкам
12 970 275 ₽
355 350 ₽/м²













