Продается Студия, 22.8 м²
Россия, Санкт-Петербург, Партизанская улица, 5
Ладожская
19 мин.
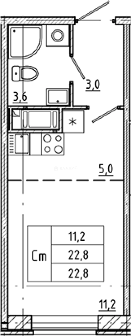
22.8 м²
Общая площадь
16.2 м²
Жилая площадь
11 из 12
Этаж
Описание
На территории комплекса предусмотрены пространства для комфортного времяпровождения: лаунж зоны, детский и спортивные площадки, зоны для прогулок, а также коворкинги. Также особо внимание уделяется безопасности комплекса. ЖК и внутренний двор оснащены системами видеонаблюдения.
В ЖК "Большая охта" предусмотрены детский сады и школы, а также большой кабинет педиатра внутри дома.
О квартире
Общая площадь
22.8 м²
Жилая площадь
16.2 м²
Площадь комнат
16.2 м²
Высота потолков
2.85 м
Этаж
11
Окна выходят
На улицу
О доме
Год постройки
2025
Этажность
12
Материал постройки
Кирпично-монолитный
Материал перекрытий
Монолитные
Отопление
Центральное
Парковка
Подземная
Расположение
Россия, Санкт-Петербург, Партизанская улица, 5
Ладожская
19 мин.
Новочеркасская
23 мин.
Проспект Большевиков
5 мин.
Чернышевская
5 мин.
Площадь Восстания
6 мин.
Площадь Ленина
6 мин.
Ипотечный калькулятор
Заполните 1 анкету — получите предложения от десятков банков на специальных условиях
Программа ипотеки
Стоимость жилья, ₽
Первый взнос, ₽
Срок кредита
от 5.75%
Ставка
от 50 631 ₽
Платеж в месяц
Расчёт носит информационный характер и не является публичной офертой
Похожие объекты
Консультант по новостройкам
8 047 966 ₽
352 981 ₽/м²














