Продается 2-комн. квартира, 34.5 м²
Россия, Санкт-Петербург, Красногвардейский район, муниципальный округ Большая Охта, жилой комплекс ЛСР Большая Охта
Ладожская
17 мин.
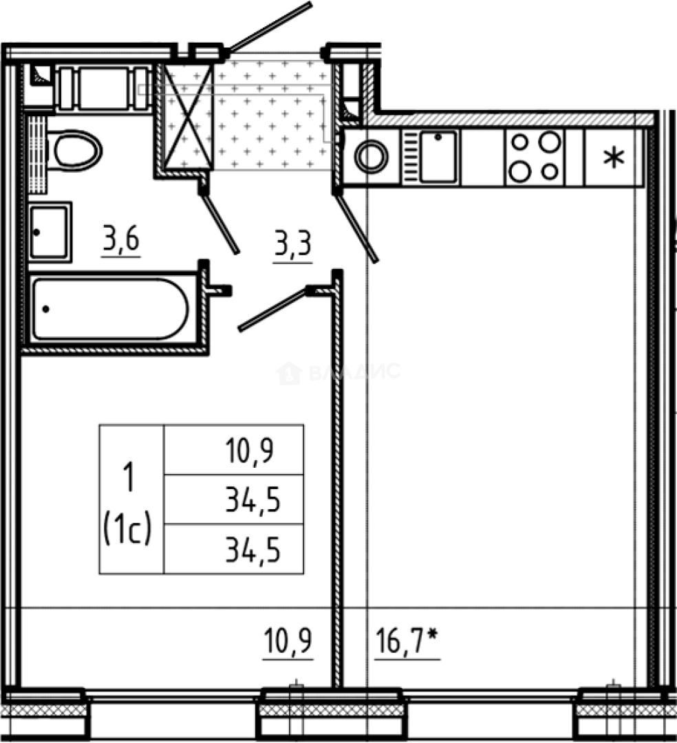
34.5 м²
Общая площадь
10.9 м²
Жилая площадь
16.7 м²
Площадь кухни
10 из 12
Этаж
Описание
В проекте предложено множество планировочных решений. Особенностями квартир стали высокие потолки от 2,7 до 3 метров и увеличенные окна. Горизонтальная разводка труб водоснабжения и отопления и вынесенные в холл дома счетчики сохраняют эстетичный дизайн комнат. Встроенные клапаны инфильтрации воздуха поддерживают чистоту и свежесть воздуха.
На территории комплекса спроектированы игровые площадки для детей разных возрастов, спортивные и лаундж-зоны, а также коворкинг. Комплекс облагорожен и озеленен. Вместе с «Умным домом» безопасность поддержат и камеры видеонаблюдения на всей территории проекта. В жилом комплексе работают пост охраны и консьержные. На территории спроектированы совмещенная с детским садом школа, а также еще один детский сад, встроенный в дом. Так же в жилом комплексе предусмотрен большой кабинет педиатра.
Местоположение проекта характеризуется удобной транспортной доступностью. Отсюда на машине до исторического центра можно добраться за 5-7 минут, до Ладожского вокзала — за 5 минут. За 20 минут можно дойти до станции метро «Ладожская». В 10 минутах располагается крупный торговый комплекс «Охта Молл». За 12 минут можно дойти до креативного кластера Design District DAA. Рядом с жилым комплексом планируется парк и культурное пространство на Охтинском мысе.
О квартире
Общая площадь
34.5 м²
Жилая площадь
10.9 м²
Площадь кухни
16.7 м²
Площадь комнат
10.9 м²
Высота потолков
3 м
Этаж
10
Окна выходят
На улицу
О доме
Год постройки
2027
Этажность
12
Материал постройки
Панельный
Парковка
Подземная
Расположение
Россия, Санкт-Петербург, Красногвардейский район, муниципальный округ Большая Охта, жилой комплекс ЛСР Большая Охта
Ладожская
17 мин.
Новочеркасская
22 мин.
Проспект Большевиков
5 мин.
Чернышевская
5 мин.
Площадь Восстания
6 мин.
Маяковская
6 мин.
Ипотечный калькулятор
Заполните 1 анкету — получите предложения от десятков банков на специальных условиях
Программа ипотеки
Стоимость жилья, ₽
Первый взнос, ₽
Срок кредита
от 5.75%
Ставка
от 79 518 ₽
Платеж в месяц
Расчёт носит информационный характер и не является публичной офертой
Похожие объекты




1-комн. квартира, 39,5 м², 2/15 эт.
Ладожская
6 мин.


Свободная планировка, 35,4 м², 6/6 эт.
Площадь Восстания
12 мин.








Студия, 31,2 м², 12/14 эт.
Новочеркасская
12 мин.








Студия, 31,2 м², 11/14 эт.
Новочеркасская
12 мин.
Консультант по новостройкам
12 639 799 ₽
366 371 ₽/м²















