Продается 2-комн. квартира, 45 м²
Россия, Санкт-Петербург, Пушкин, ЖК Город-спутник Южный
Звёздная
29 мин.
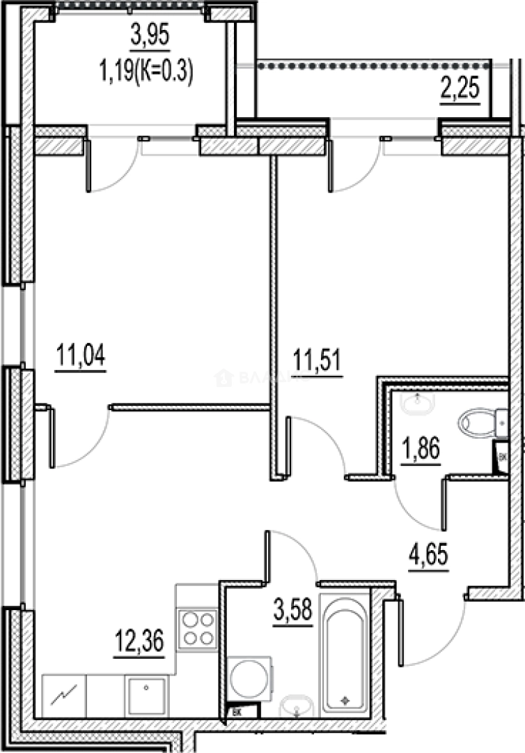
45 м²
Общая площадь
22.55 м²
Жилая площадь
12.36 м²
Площадь кухни
2 из 10
Этаж
Описание
Планировки включают студии, 1-, 2- и 3-комнатные квартиры. Все квартиры передаются с чистовой отделкой. В жилых помещениях на полах уложен светлый ламинат, на стенах — обои под покраску, потолки — натяжные матовые. Установлены белые межкомнатные двери, ПВХ-плинтусы с кабель-каналом. В санузлах на стенах и полу — керамическая плитка, потолки с встроенным освещением. Монтаж включает встроенный электрический щит, розетки, выключатели, дверной звонок, домофонную трубку. Установлены унитаз, раковина, ванна или душевой поддон со смесителями и душевым гарнитуром.
На территории комплекса реализована комплексная система безопасности: видеонаблюдение, освещенные дворы, закрытый доступ. Благоустройство включает пешеходные маршруты, зоны отдыха, детские и спортивные площадки, стоянки для автомобилей. В составе квартала предусмотрена собственная инфраструктура — школа, детские сады, поликлиника, библиотека, спортивный комплекс с бассейном и центр детского технического творчества.
Комплекс расположен рядом с кампусом ИТМО Хайпарк — будущим образовательным и технологическим кластером. До аэропорта Пулково — 30 минут транспортом, до Экспофорума — 15 минут. В перспективе запланировано развитие общественного транспорта, велосипедной инфраструктуры и дорожной сети, что обеспечит удобную связь с городом.
О квартире
Общая площадь
45 м²
Жилая площадь
22.55 м²
Площадь кухни
12.36 м²
Площадь комнат
11.04+11.51 м²
Высота потолков
2.7 м
Этаж
2
Окна выходят
На улицу
О доме
Год постройки
2027
Этажность
10
Материал постройки
Кирпично-монолитный
Материал перекрытий
Монолитные
Отопление
Центральное
Парковка
Наземная
Расположение
Россия, Санкт-Петербург, Пушкин, ЖК Город-спутник Южный
Звёздная
29 мин.
Купчино
29 мин.
Проспект Ветеранов
29 мин.
Шушары
30 мин.
Ипотечный калькулятор
Заполните 1 анкету — получите предложения от десятков банков на специальных условиях
Программа ипотеки
Стоимость жилья, ₽
Первый взнос, ₽
Срок кредита
от 5.75%
Ставка
от 49 952 ₽
Платеж в месяц
Расчёт носит информационный характер и не является публичной офертой
Похожие объекты









2-комн. квартира, 47,2 м², 3/10 эт.
Звёздная
29 мин.








2-комн. квартира, 40,2 м², 2/10 эт.
Звёздная
29 мин.









2-комн. квартира, 39,8 м², 5/10 эт.
Звёздная
29 мин.








2-комн. квартира, 46,0 м², 6/10 эт.
Звёздная
29 мин.
Консультант по новостройкам
7 940 000 ₽
176 445 ₽/м²

















