Продается 3-комн. квартира, 50.11 м²
Россия, Санкт-Петербург, Фрунзенский район, муниципальный округ Волковское, ЖК Гранат
Бухарестская
8 мин.
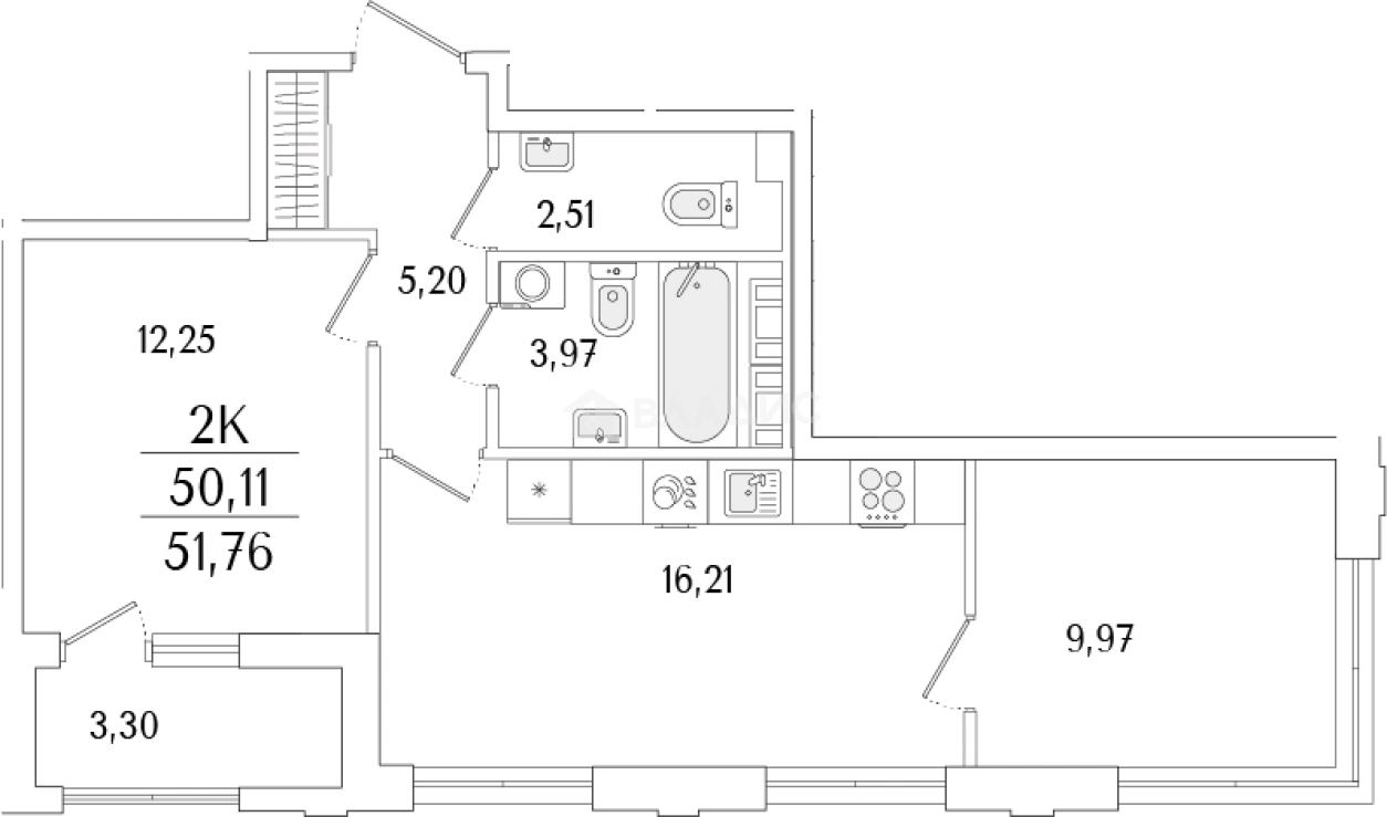
50.11 м²
Общая площадь
22.22 м²
Жилая площадь
16.21 м²
Площадь кухни
6 из 13
Этаж
Описание
Доступны квартиры от студий до 3-комнатных площадью от 18 до 82 кв. м. Варианты отделки: без отделки, white box и два варианта чистовой — светлый и натуральный. В варианте white box выполнена стяжка пола, подготовка стен и потолка под финишную отделку, установлены розетки и выключатели, металлическая входная дверь, радиаторы, сантехнические выводы и счетчики. В чистовой отделке использован ламинат, антивандальные обои под покраску, керамическая плитка, установлена вся необходимая сантехника и межкомнатные двери. Большинство планировок включают кухни-гостиные и гардеробные.
Во дворах комплекса реализована концепция «двор без машин» с зонированием: 3 тематических двора — с пешеходным мостом, арт-объектом и детской горкой. На территории оборудованы спортивные площадки, зоны отдыха и амфитеатр, озеленение выполнено по проекту с использованием вечно-зеленых насаждений и геопластики. Входные группы оформлены по принципу безбарьерной среды — с доступом с уровня земли и теплыми полами. В каждой парадной — колясочная.
Комплекс расположен на улице Фучика во Фрунзенском районе Санкт-Петербурга, в 12 минутах пешком от станции метро Бухарестская. В пешей доступности — школы, детские сады, поликлиники, торговые центры, спортивные учреждения. До центра города — 20 минут транспортом, до КАД — 11 минут. В радиусе 2,5 км находятся 5 зеленых зон, включая Московский парк Победы и парк Интернационалистов. На соседнем участке планируется строительство школы и детского сада.
О квартире
Общая площадь
50.11 м²
Жилая площадь
22.22 м²
Площадь кухни
16.21 м²
Площадь комнат
12.25+9.97 м²
Высота потолков
2.73 м
Этаж
6
Окна выходят
На улицу
О доме
Год постройки
2028
Этажность
13
Материал постройки
Кирпично-монолитный
Парковка
Подземная
Расположение
Россия, Санкт-Петербург, Фрунзенский район, муниципальный округ Волковское, ЖК Гранат
Бухарестская
8 мин.
Международная
20 мин.
Волковская
22 мин.
Елизаровская
4 мин.
Проспект Славы
5 мин.
Ломоносовская
5 мин.
Электросила
5 мин.
Московские ворота
5 мин.
Ипотечный калькулятор
Заполните 1 анкету — получите предложения от десятков банков на специальных условиях
Программа ипотеки
Стоимость жилья, ₽
Первый взнос, ₽
Срок кредита
от 5.75%
Ставка
от 121 120 ₽
Платеж в месяц
Расчёт носит информационный характер и не является публичной офертой
Похожие объекты







2-комн. квартира, 50,1 м², 6/13 эт.
Бухарестская
9 мин.





3-комн. квартира, 50,5 м², 6/13 эт.
Бухарестская
8 мин.





3-комн. квартира, 50,1 м², 12/13 эт.
Бухарестская
8 мин.







3-комн. квартира, 47,9 м², 11/13 эт.
Бухарестская
8 мин.
Консультант по новостройкам
19 252 620 ₽
384 208 ₽/м²






