Продается 3-комн. квартира, 62.6 м²
Россия, Санкт-Петербург, Курская улица, 27В
Обводный Канал
6 мин.
62.6 м²
Общая площадь
26.13 м²
Жилая площадь
21.2 м²
Площадь кухни
7 из 10
Этаж
Описание
В проекте предложено множество планировочных решений: в наличии квартиры, как классического типа, так и европланировки. Сдаются они с отделкой White box и увеличенными окнами. Высота потолков достигает 2.73 метров, а на 9-10 этажах — 3 метра. В жилом комплексе имеются квартиры с мастер-спальнями, эркерами, французскими балконами и террасами.
Территория комплекса благоустроена: выполнено ландшафтное озеленение, спроектированы детские и спортивные зоны, дизайнерские места для отдыха с Wi-Fi и зарядками. На -1 этаже расположен подземный паркинг с доступом из лифта, велопарковки и кладовые.
Жилой комплекс расположен на улице Курской, в 10 минутах пешком от метро «Обводный канал». Рядом находятся школы, детские сады, вузы, мед. учреждения, рестораны, фитнес-клубы. В 10 минутах на автомобиле расположен Невский проспект.
О квартире
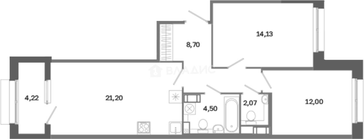
Общая площадь
62.6 м²
Жилая площадь
26.13 м²
Площадь кухни
21.2 м²
Площадь комнат
14.13+12 м²
Высота потолков
2.73 м
Этаж
7
Окна выходят
На улицу
О доме
Год постройки
2028
Этажность
10
Материал постройки
Кирпично-монолитный
Парковка
Подземная
Расположение
Россия, Санкт-Петербург, Курская улица, 27В
Обводный Канал
6 мин.
Лиговский проспект
14 мин.
Волковская
20 мин.
Звенигородская
21 мин.
Пушкинская
21 мин.
Владимирская
23 мин.
Достоевская
25 мин.
Ипотечный калькулятор
Заполните 1 анкету — получите предложения от десятков банков на специальных условиях
Программа ипотеки
Стоимость жилья, ₽
Первый взнос, ₽
Срок кредита
от 5.75%
Ставка
от 178 283 ₽
Платеж в месяц
Расчёт носит информационный характер и не является публичной офертой
Похожие объекты







3-комн. квартира, 70,5 м², 8/12 эт.
Московские ворота
8 мин.








3-комн. квартира, 70,5 м², 5/12 эт.
Московские ворота
8 мин.








3-комн. квартира, 70,5 м², 9/12 эт.
Московские ворота
8 мин.








3-комн. квартира, 70,5 м², 6/12 эт.
Московские ворота
8 мин.
Консультант по новостройкам
28 339 020 ₽
452 700 ₽/м²











