Продается 3-комн. квартира, 61.71 м²
Россия, Санкт-Петербург, Курская улица, 27В
Обводный Канал
6 мин.
61.71 м²
Общая площадь
27.29 м²
Жилая площадь
18.03 м²
Площадь кухни
8 из 10
Этаж
Описание
В проекте предложено множество планировочных решений: в наличии квартиры, как классического типа, так и европланировки. Сдаются они с отделкой White box и увеличенными окнами. Высота потолков достигает 2.73 метров, а на 9-10 этажах — 3 метра. В жилом комплексе имеются квартиры с мастер-спальнями, эркерами, французскими балконами и террасами.
Территория комплекса благоустроена: выполнено ландшафтное озеленение, спроектированы детские и спортивные зоны, дизайнерские места для отдыха с Wi-Fi и зарядками. На -1 этаже расположен подземный паркинг с доступом из лифта, велопарковки и кладовые.
Жилой комплекс расположен на улице Курской, в 10 минутах пешком от метро «Обводный канал». Рядом находятся школы, детские сады, вузы, мед. учреждения, рестораны, фитнес-клубы. В 10 минутах на автомобиле расположен Невский проспект.
О квартире
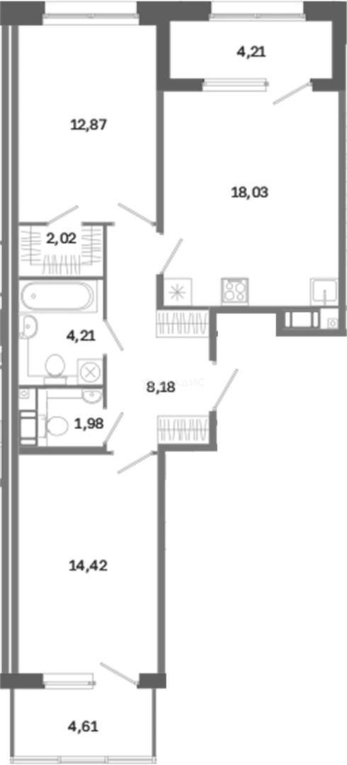
Общая площадь
61.71 м²
Жилая площадь
27.29 м²
Площадь кухни
18.03 м²
Площадь комнат
14.42+12.87 м²
Высота потолков
2.73 м
Этаж
8
Окна выходят
На улицу
О доме
Год постройки
2028
Этажность
10
Материал постройки
Кирпично-монолитный
Парковка
Подземная
Расположение
Россия, Санкт-Петербург, Курская улица, 27В
Обводный Канал
6 мин.
Лиговский проспект
14 мин.
Волковская
20 мин.
Звенигородская
21 мин.
Пушкинская
21 мин.
Владимирская
23 мин.
Достоевская
25 мин.
Ипотечный калькулятор
Заполните 1 анкету — получите предложения от десятков банков на специальных условиях
Программа ипотеки
Стоимость жилья, ₽
Первый взнос, ₽
Срок кредита
от 5.75%
Ставка
от 181 184 ₽
Платеж в месяц
Расчёт носит информационный характер и не является публичной офертой
Похожие объекты








3-комн. квартира, 66,9 м², 10/12 эт.
Московские ворота
8 мин.








3-комн. квартира, 66,9 м², 12/12 эт.
Московские ворота
8 мин.






3-комн. квартира, 56,7 м², 5/10 эт.
Площадь Восстания
17 мин.






3-комн. квартира, 59,5 м², 3/10 эт.
Площадь Восстания
17 мин.
Консультант по новостройкам
28 800 057 ₽
466 700 ₽/м²





















