Продается 3-комн. квартира, 69.64 м²
Россия, Санкт-Петербург, бульвар Головнина, 3к1
Приморская
10 мин.
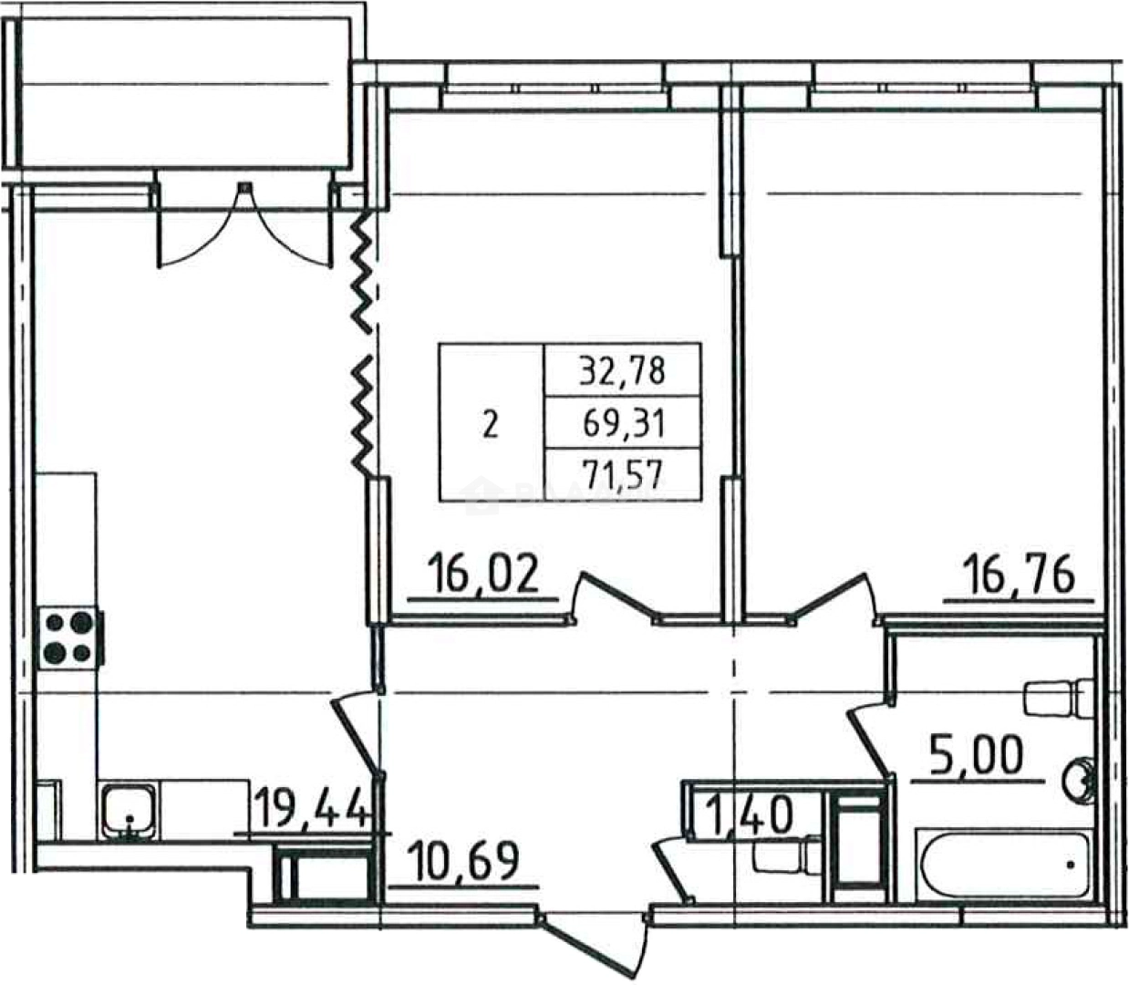
69.64 м²
Общая площадь
32.78 м²
Жилая площадь
19.44 м²
Площадь кухни
6 из 18
Этаж
Описание
Жилой комплекс находится на Васильевском острове. В районе есть магазины, отделения почты и банков, кафе и рестораны, а также медицинские центры. Метро «Приморская» и выезд на ЗСД находятся в 10 минутах транспортом.
О квартире
Общая площадь
69.64 м²
Жилая площадь
32.78 м²
Площадь кухни
19.44 м²
Площадь комнат
16.02+16.76 м²
Подъезд
9
Этаж
6
Окна выходят
На улицу
О доме
Год постройки
2022
Этажность
18
Количество подъездов
12
Материал постройки
Кирпично-монолитный
Материал перекрытий
Монолитные
Отопление
Центральное
Пассажирских лифтов
1
Грузовых лифтов
1
Парковка
Подземная
Расположение
Россия, Санкт-Петербург, бульвар Головнина, 3к1
Приморская
10 мин.
Ипотечный калькулятор
Заполните 1 анкету — получите предложения от десятков банков на специальных условиях
Программа ипотеки
Стоимость жилья, ₽
Первый взнос, ₽
Срок кредита
от 5.75%
Ставка
от 99 513 ₽
Платеж в месяц
Расчёт носит информационный характер и не является публичной офертой
Похожие объекты









3-комн. квартира, 68,8 м², 11/18 эт.
Приморская
10 мин.









3-комн. квартира, 61,6 м², 18/18 эт.
Приморская
10 мин.









3-комн. квартира, 69,4 м², 12/18 эт.
Приморская
10 мин.









3-комн. квартира, 65,2 м², 18/18 эт.
Приморская
10 мин.
Консультант по новостройкам
15 818 000 ₽
227 140 ₽/м²









