Продается 4-комн. квартира, 105.06 м²
Россия, Санкт-Петербург, бульвар Александра Грина, 2к2
Приморская
10 мин.
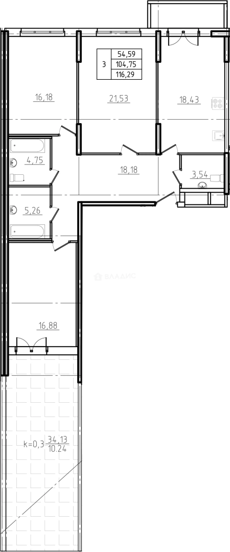
105.06 м²
Общая площадь
54.59 м²
Жилая площадь
18.43 м²
Площадь кухни
3 из 18
Этаж
Описание
Жилой комплекс находится на Васильевском острове. В районе есть магазины, отделения почты и банков, кафе и рестораны, а также медицинские центры. Метро «Приморская» и выезд на ЗСД находятся в 10 минутах транспортом.
О квартире
Общая площадь
105.06 м²
Жилая площадь
54.59 м²
Площадь кухни
18.43 м²
Площадь комнат
21.53+16.18+16.88 м²
Подъезд
2
Этаж
3
Окна выходят
На улицу
О доме
Год постройки
2022
Этажность
18
Количество подъездов
3
Материал постройки
Кирпично-монолитный
Материал перекрытий
Монолитные
Отопление
Центральное
Пассажирских лифтов
1
Грузовых лифтов
1
Парковка
Подземная
Расположение
Россия, Санкт-Петербург, бульвар Александра Грина, 2к2
Приморская
10 мин.
Ипотечный калькулятор
Заполните 1 анкету — получите предложения от десятков банков на специальных условиях
Программа ипотеки
Стоимость жилья, ₽
Первый взнос, ₽
Срок кредита
от 5.75%
Ставка
от 132 037 ₽
Платеж в месяц
Расчёт носит информационный характер и не является публичной офертой
Похожие объекты









4-комн. квартира, 94,4 м², 18/18 эт.
Приморская
10 мин.









4-комн. квартира, 93,4 м², 10/18 эт.
Приморская
10 мин.









4-комн. квартира, 113,1 м², 3/18 эт.
Приморская
10 мин.









4-комн. квартира, 93,2 м², 18/18 эт.
Приморская
10 мин.
Консультант по новостройкам
20 988 000 ₽
199 772 ₽/м²










