Продается 4-комн. квартира, 126.61 м²
Россия, Санкт-Петербург, бульвар Александра Грина, 2к2
Приморская
10 мин.
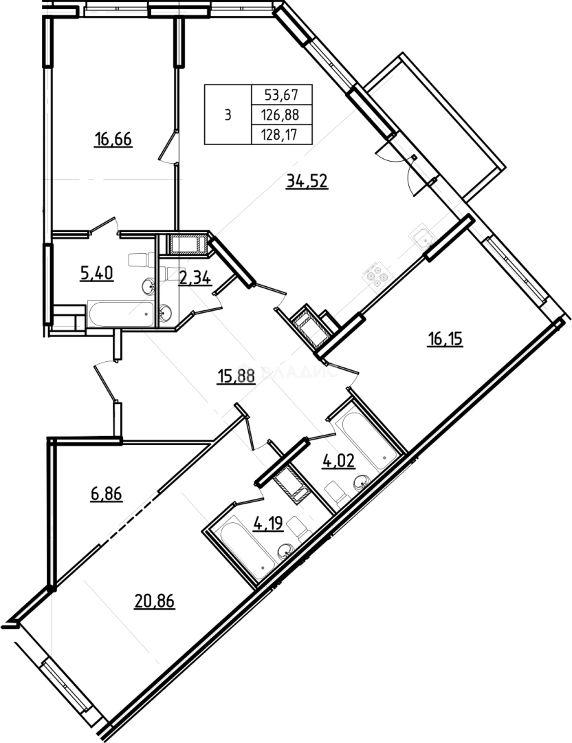
126.61 м²
Общая площадь
53.67 м²
Жилая площадь
34.52 м²
Площадь кухни
12 из 18
Этаж
Описание
Жилой комплекс находится на Васильевском острове. В районе есть магазины, отделения почты и банков, кафе и рестораны, а также медицинские центры. Метро «Приморская» и выезд на ЗСД находятся в 10 минутах транспортом.
О квартире
Общая площадь
126.61 м²
Жилая площадь
53.67 м²
Площадь кухни
34.52 м²
Площадь комнат
16.66+16.15+20.86 м²
Подъезд
2
Этаж
12
Окна выходят
На улицу
О доме
Год постройки
2022
Этажность
18
Количество подъездов
3
Материал постройки
Кирпично-монолитный
Материал перекрытий
Монолитные
Отопление
Центральное
Пассажирских лифтов
1
Грузовых лифтов
1
Парковка
Подземная
Расположение
Россия, Санкт-Петербург, бульвар Александра Грина, 2к2
Приморская
10 мин.
Ипотечный калькулятор
Заполните 1 анкету — получите предложения от десятков банков на специальных условиях
Программа ипотеки
Стоимость жилья, ₽
Первый взнос, ₽
Срок кредита
от 5.75%
Ставка
от 152 880 ₽
Платеж в месяц
Расчёт носит информационный характер и не является публичной офертой
Похожие объекты









4-комн. квартира, 113,1 м², 3/18 эт.
Приморская
10 мин.









4-комн. квартира, 110,9 м², 8/18 эт.
Приморская
10 мин.









5-комн. квартира, 125,1 м², 4/18 эт.
Приморская
10 мин.









5-комн. квартира, 132,0 м², 3/18 эт.
Приморская
10 мин.
Консультант по новостройкам
24 301 000 ₽
191 936 ₽/м²










