Продается 3-комн. квартира, 69.3 м²
Россия, Санкт-Петербург, бульвар Головнина, 3к1
Приморская
10 мин.
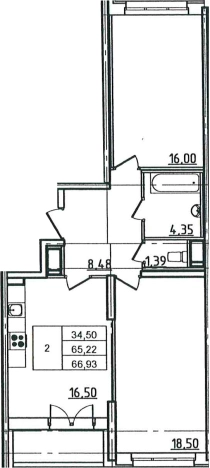
69.3 м²
Общая площадь
35.76 м²
Жилая площадь
15.09 м²
Площадь кухни
6 из 18
Этаж
Описание
Жилой комплекс находится на Васильевском острове. В районе есть магазины, отделения почты и банков, кафе и рестораны, а также медицинские центры. Метро «Приморская» и выезд на ЗСД находятся в 10 минутах транспортом.
О квартире
Общая площадь
69.3 м²
Жилая площадь
35.76 м²
Площадь кухни
15.09 м²
Площадь комнат
19+16.76 м²
Подъезд
10
Этаж
6
Окна выходят
На улицу
О доме
Год постройки
2022
Этажность
18
Количество подъездов
12
Материал постройки
Кирпично-монолитный
Материал перекрытий
Монолитные
Отопление
Центральное
Пассажирских лифтов
1
Грузовых лифтов
1
Парковка
Подземная
Расположение
Россия, Санкт-Петербург, бульвар Головнина, 3к1
Приморская
10 мин.
Ипотечный калькулятор
Заполните 1 анкету — получите предложения от десятков банков на специальных условиях
Программа ипотеки
Стоимость жилья, ₽
Первый взнос, ₽
Срок кредита
от 5.75%
Ставка
от 95 782 ₽
Платеж в месяц
Расчёт носит информационный характер и не является публичной офертой
Похожие объекты









2-комн. квартира, 69,3 м², 5/18 эт.
Приморская
10 мин.









3-комн. квартира, 66,6 м², 18/18 эт.
Приморская
10 мин.









3-комн. квартира, 61,5 м², 17/18 эт.
Приморская
10 мин.









3-комн. квартира, 69,2 м², 3/18 эт.
Приморская
10 мин.
Консультант по новостройкам
15 225 000 ₽
219 697 ₽/м²










