Продается 3-комн. квартира, 59.06 м²
Россия, Санкт-Петербург, улица Вадима Шефнера, 4
Приморская
10 мин.
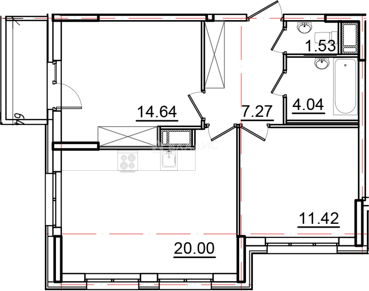
59.06 м²
Общая площадь
26.06 м²
Жилая площадь
20 м²
Площадь кухни
18 из 18
Этаж
Описание
Жилой комплекс находится на Васильевском острове. В районе есть магазины, отделения почты и банков, кафе и рестораны, а также медицинские центры. Метро «Приморская» и выезд на ЗСД находятся в 10 минутах транспортом.
О квартире
Общая площадь
59.06 м²
Жилая площадь
26.06 м²
Площадь кухни
20 м²
Площадь комнат
11.42+14.64 м²
Подъезд
1
Этаж
18
Окна выходят
На улицу
О доме
Год постройки
2022
Этажность
18
Материал постройки
Кирпично-монолитный
Материал перекрытий
Монолитные
Отопление
Центральное
Пассажирских лифтов
1
Грузовых лифтов
1
Парковка
Подземная
Расположение
Россия, Санкт-Петербург, улица Вадима Шефнера, 4
Приморская
10 мин.
Ипотечный калькулятор
Заполните 1 анкету — получите предложения от десятков банков на специальных условиях
Программа ипотеки
Стоимость жилья, ₽
Первый взнос, ₽
Срок кредита
от 5.75%
Ставка
от 94 524 ₽
Платеж в месяц
Расчёт носит информационный характер и не является публичной офертой
Похожие объекты









3-комн. квартира, 55,3 м², 18/18 эт.
Приморская
10 мин.









3-комн. квартира, 58,7 м², 11/18 эт.
Приморская
10 мин.









3-комн. квартира, 61,5 м², 17/18 эт.
Приморская
10 мин.









3-комн. квартира, 57,8 м², 18/18 эт.
Приморская
10 мин.
Консультант по новостройкам
15 025 000 ₽
254 403 ₽/м²










