Продается 5-комн. квартира, 133.03 м²
Россия, Санкт-Петербург, бульвар Головнина, 3к1
Приморская
10 мин.
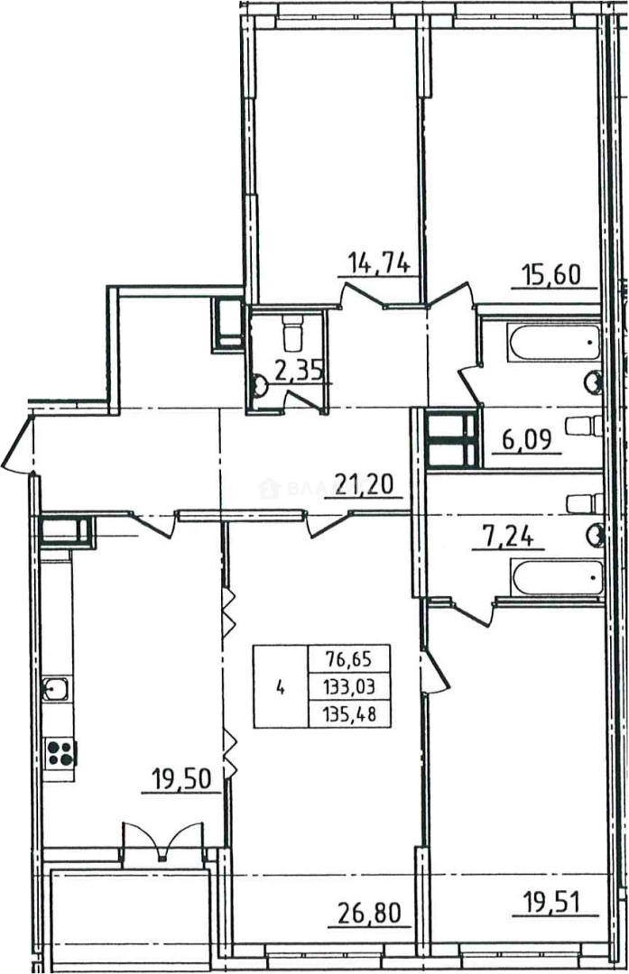
133.03 м²
Общая площадь
76.65 м²
Жилая площадь
19.5 м²
Площадь кухни
18 из 18
Этаж
Описание
Жилой комплекс находится на Васильевском острове. В районе есть магазины, отделения почты и банков, кафе и рестораны, а также медицинские центры. Метро «Приморская» и выезд на ЗСД находятся в 10 минутах транспортом.
О квартире
Общая площадь
133.03 м²
Жилая площадь
76.65 м²
Площадь кухни
19.5 м²
Площадь комнат
14.74+15.6+19.51+26.8 м²
Подъезд
7
Этаж
18
Окна выходят
На улицу
О доме
Год постройки
2022
Этажность
18
Количество подъездов
12
Материал постройки
Кирпично-монолитный
Материал перекрытий
Монолитные
Отопление
Центральное
Пассажирских лифтов
1
Грузовых лифтов
1
Парковка
Подземная
Расположение
Россия, Санкт-Петербург, бульвар Головнина, 3к1
Приморская
10 мин.
Ипотечный калькулятор
Заполните 1 анкету — получите предложения от десятков банков на специальных условиях
Программа ипотеки
Стоимость жилья, ₽
Первый взнос, ₽
Срок кредита
от 5.75%
Ставка
от 186 845 ₽
Платеж в месяц
Расчёт носит информационный характер и не является публичной офертой
Похожие объекты









5-комн. квартира, 125,4 м², 18/18 эт.
Приморская
10 мин.








5-комн. квартира, 134,8 м², 2/18 эт.
Приморская
10 мин.









4-комн. квартира, 126,3 м², 15/18 эт.
Приморская
10 мин.









5-комн. квартира, 133,0 м², 10/18 эт.
Приморская
10 мин.
Консультант по новостройкам
29 700 000 ₽
223 258 ₽/м²









