Продается 2-комн. квартира, 35.13 м²
Россия, Санкт-Петербург, Невский район, муниципальный округ Рыбацкое, жилой комплекс Живи в Рыбацком, 5
Рыбацкое
20 мин.
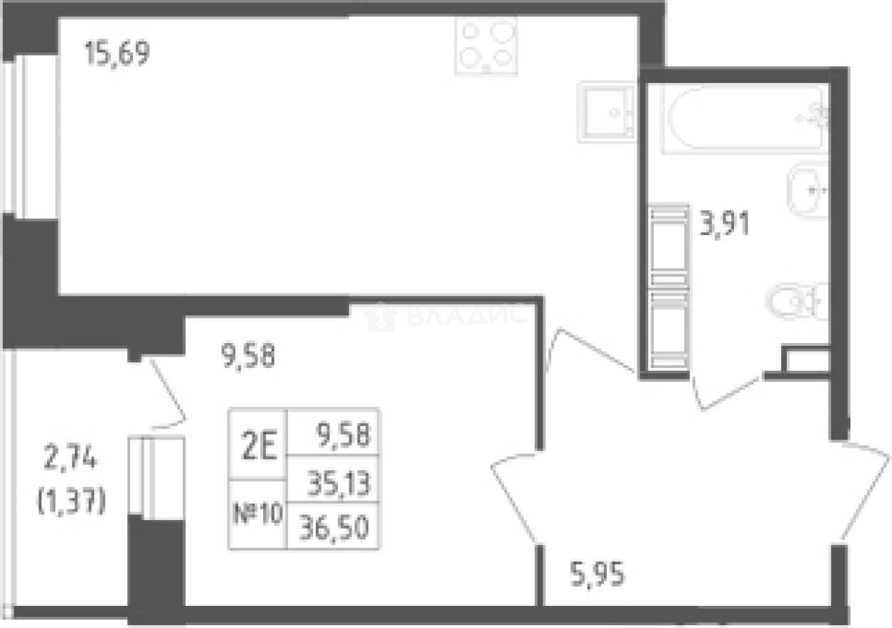
35.13 м²
Общая площадь
9.58 м²
Жилая площадь
15.69 м²
Площадь кухни
14 из 28
Этаж
Описание
Квартиры передаются дольщикам с чистовой отделкой, в которую входят установка металлических входных дверей, обои под покраску, кафель в санузлах и ламинат в коридоре, гостиной и кухнях. Они представлены классическими и европланировками. Спроектированы окна шириной 1,6 метра. Из окон некоторых квартир на верхних этажах открывается вид на Неву.
На первых этажах предусмотрены коммерческие помещения, в цоколе — подземный паркинг. В состав проекта входят 2 школы на 825 и 1825 мест и 4 детских сада на 160-190 мест и собственный торговый центр. На озелененной территории установлены детские и спортивные площадки, а также гостевые паркинги. До набережной Невы две минуты пешком.
Жилой комплекс расположен в Невском районе СПб. В пешей доступности есть магазины, отделения почты и банков, школы, детские сады. Выезд на КАД находится в 10 минутах транспортом. Метро «Рыбацкое» расположено в 10 минутах транспортом.
О квартире
Общая площадь
35.13 м²
Жилая площадь
9.58 м²
Площадь кухни
15.69 м²
Площадь комнат
9.58 м²
Высота потолков
2.58 м
Этаж
14
Окна выходят
На улицу
О доме
Год постройки
2026
Этажность
28
Материал постройки
Панельный
Материал перекрытий
Монолитные
Отопление
Центральное
Парковка
Многоуровневая
Расположение
Россия, Санкт-Петербург, Невский район, муниципальный округ Рыбацкое, жилой комплекс Живи в Рыбацком, 5
Рыбацкое
20 мин.
Обухово
7 мин.
Пролетарская
7 мин.
Шушары
8 мин.
Дунайская
10 мин.
Ломоносовская
11 мин.
Проспект Славы
12 мин.
Купчино
13 мин.
Ипотечный калькулятор
Заполните 1 анкету — получите предложения от десятков банков на специальных условиях
Программа ипотеки
Стоимость жилья, ₽
Первый взнос, ₽
Срок кредита
от 5.75%
Ставка
от 70 665 ₽
Платеж в месяц
Расчёт носит информационный характер и не является публичной офертой
Похожие объекты








2-комн. квартира, 35,1 м², 18/28 эт.
Рыбацкое
20 мин.







2-комн. квартира, 35,0 м², 5/18 эт.
Рыбацкое
18 мин.







1-комн. квартира, 36,0 м², 6/28 эт.
Рыбацкое
19 мин.








2-комн. квартира, 35,5 м², 1/28 эт.
Рыбацкое
20 мин.
Консультант по новостройкам
11 232 531 ₽
319 742 ₽/м²









