Продается 1-комн. квартира, 34.75 м²
Россия, Санкт-Петербург, Невский район, муниципальный округ Рыбацкое, жилой комплекс Живи в Рыбацком, 5
Рыбацкое
20 мин.
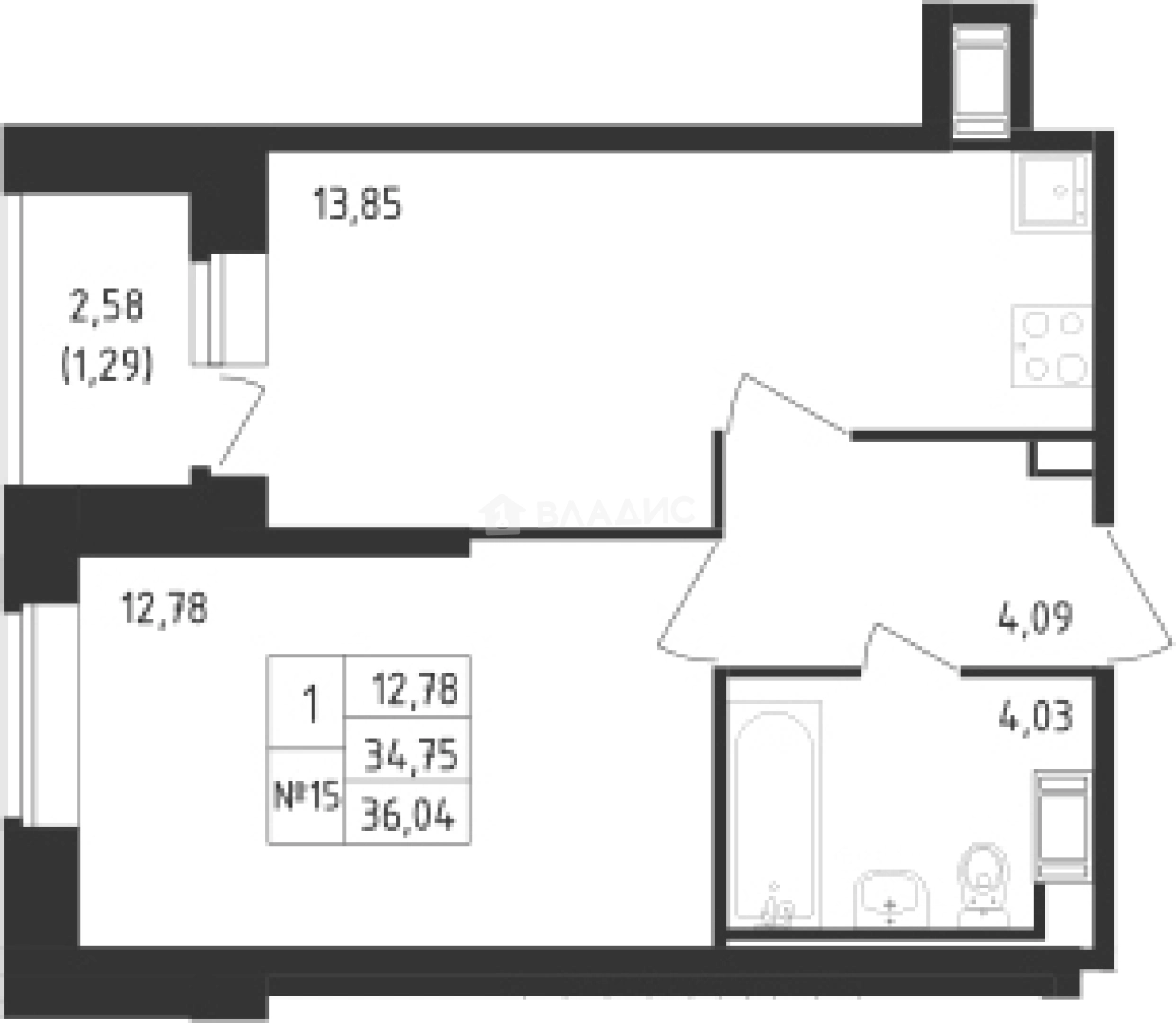
34.75 м²
Общая площадь
12.78 м²
Жилая площадь
13.85 м²
Площадь кухни
13 из 28
Этаж
Описание
Квартиры передаются дольщикам с чистовой отделкой, в которую входят установка металлических входных дверей, обои под покраску, кафель в санузлах и ламинат в коридоре, гостиной и кухнях. Они представлены классическими и европланировками. Спроектированы окна шириной 1,6 метра. Из окон некоторых квартир на верхних этажах открывается вид на Неву.
На первых этажах предусмотрены коммерческие помещения, в цоколе — подземный паркинг. В состав проекта входят 2 школы на 825 и 1825 мест и 4 детских сада на 160-190 мест и собственный торговый центр. На озелененной территории установлены детские и спортивные площадки, а также гостевые паркинги. До набережной Невы две минуты пешком.
Жилой комплекс расположен в Невском районе СПб. В пешей доступности есть магазины, отделения почты и банков, школы, детские сады. Выезд на КАД находится в 10 минутах транспортом. Метро «Рыбацкое» расположено в 10 минутах транспортом.
О квартире
Общая площадь
34.75 м²
Жилая площадь
12.78 м²
Площадь кухни
13.85 м²
Площадь комнат
12.78 м²
Высота потолков
2.58 м
Этаж
13
Окна выходят
На улицу
О доме
Год постройки
2026
Этажность
28
Материал постройки
Панельный
Материал перекрытий
Монолитные
Отопление
Центральное
Парковка
Многоуровневая
Расположение
Россия, Санкт-Петербург, Невский район, муниципальный округ Рыбацкое, жилой комплекс Живи в Рыбацком, 5
Рыбацкое
20 мин.
Обухово
7 мин.
Пролетарская
7 мин.
Шушары
8 мин.
Дунайская
10 мин.
Ломоносовская
11 мин.
Проспект Славы
12 мин.
Купчино
13 мин.
Ипотечный калькулятор
Заполните 1 анкету — получите предложения от десятков банков на специальных условиях
Программа ипотеки
Стоимость жилья, ₽
Первый взнос, ₽
Срок кредита
от 5.75%
Ставка
от 57 738 ₽
Платеж в месяц
Расчёт носит информационный характер и не является публичной офертой
Похожие объекты








1-комн. квартира, 34,7 м², 18/28 эт.
Рыбацкое
20 мин.






1-комн. квартира, 30,6 м², 7/18 эт.
Рыбацкое
21 мин.








1-комн. квартира, 34,8 м², 16/28 эт.
Рыбацкое
20 мин.








1-комн. квартира, 34,7 м², 15/28 эт.
Рыбацкое
20 мин.
Консультант по новостройкам
9 177 727 ₽
264 108 ₽/м²






