Продается 4-комн. квартира, 97.37 м²
Россия, Санкт-Петербург, проспект Авиаконструкторов, 54
Комендантский проспект
6 мин.
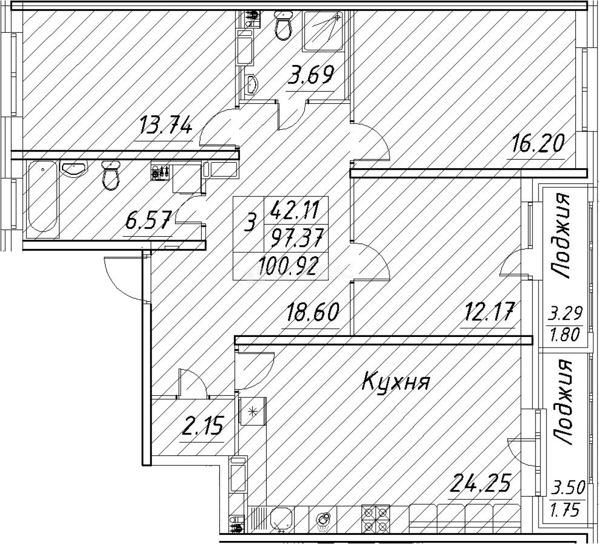
97.37 м²
Общая площадь
42.11 м²
Жилая площадь
24.25 м²
Площадь кухни
6 из 12
Этаж
Описание
В «Modum» предложено множество планировочных решений: в наличии квартиры, как классического типа, так и европланировки. На каждом этаже расположено не более четырех квартир. В них предусмотрены приватные террасы, гардеробные, ванные с окном и сауны. Квартиры передаются дольщикам с подчисткой отделкой.
В состав комплекса входит детский сад на 120 мест и фитнес клуб со SPA-комплексом и бассейном. Территория свободна от автомобилей. Для автовладельцев предусмотрен подземный паркинг на 943 места. Во дворах спроектированы уникальные ландшафтные решения: один двор оформлен в теме леса, другой в теме поля, третий - луга.
Жилой квартал расположен в Приморском районе с развитой инфраструктурой. В пешей доступности есть продуктовые магазины, отделения почты и банков. Напротив дома располагается Юнтоловский лесопарк. Выезд на КАД и ЗСД расположен в 5 минутах транспортом, метро «Комендантский проспект» – в 10 минутах транспортом.
О квартире
Общая площадь
97.37 м²
Жилая площадь
42.11 м²
Площадь кухни
24.25 м²
Площадь комнат
13.74+16.20+12.17 м²
Высота потолков
2.75 м
Подъезд
15
Этаж
6
Окна выходят
На улицу
О доме
Год постройки
2022
Этажность
12
Материал постройки
Кирпично-монолитный
Материал перекрытий
Монолитные
Отопление
Центральное
Пассажирских лифтов
1
Грузовых лифтов
1
Парковка
Подземная
Расположение
Россия, Санкт-Петербург, проспект Авиаконструкторов, 54
Комендантский проспект
6 мин.
Беговая
8 мин.
Старая Деревня
8 мин.
Пионерская
9 мин.
Удельная
10 мин.
Озерки
10 мин.
Зенит
10 мин.
Проспект Просвещения
11 мин.
Ипотечный калькулятор
Заполните 1 анкету — получите предложения от десятков банков на специальных условиях
Программа ипотеки
Стоимость жилья, ₽
Первый взнос, ₽
Срок кредита
от 5.75%
Ставка
от 201 949 ₽
Платеж в месяц
Расчёт носит информационный характер и не является публичной офертой
Похожие объекты







3-комн. квартира, 86,7 м², 7/12 эт.
Комендантский проспект
6 мин.







4-комн. квартира, 97,9 м², 4/12 эт.
Комендантский проспект
6 мин.







4-комн. квартира, 97,0 м², 6/12 эт.
Комендантский проспект
6 мин.







4-комн. квартира, 100,9 м², 6/12 эт.
Комендантский проспект
6 мин.
Консультант по новостройкам
32 100 796 ₽
329 679 ₽/м²








