Продается 1-комн. квартира, 46.08 м²
Россия, Санкт-Петербург, ЖК Знатный
Московские ворота
8 мин.
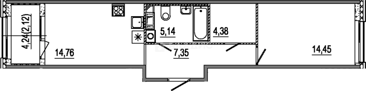
46.08 м²
Общая площадь
14.45 м²
Жилая площадь
14.76 м²
Площадь кухни
3 из 12
Этаж
Описание
В проекте предусмотрены различные планировочные решения как классического, так и евроформата. В большинстве квартир предусмотрены балконы или лоджии. Квартиры сдаются с подчистовой отделкой, с высотой потолков от 2,88 до 3,05 метров и увеличенными окнами. На первом этаже предлагаются сити-виллы с собственным входом и высотой потолков 3,9 метров.
В комплексе предусмотрен добрососедский центр, включающий в себя детскую игровую зону с зонами активности, отдыха и творчества, коворкинг, переговорную комнату, библиотеку, кофе-пойнт и мини-маркет. На территории высажены деревья и кустарники, обустроена детская площадка. В проекте предусмотрен собственный детский сад. Для хранения транспорта есть подземный паркинг и велопарковка.
Проект расположен в Московском районе Санкт-Петербурга на территории бывшей Петербургской макаронной фабрики. В пешей доступности находится вся необходимая инфраструктура: детские сады, школы, продуктовые магазины, гипермаркеты, рестораны и медицинские учреждения. Метро «Московские ворота» находится в 10 минутах пешком.
О квартире
Общая площадь
46.08 м²
Жилая площадь
14.45 м²
Площадь кухни
14.76 м²
Площадь комнат
14.45 м²
Высота потолков
2.9 м
Этаж
3
Окна выходят
На улицу
О доме
Год постройки
2028
Этажность
12
Материал постройки
Монолитный
Парковка
Подземная
Расположение
Россия, Санкт-Петербург, ЖК Знатный
Московские ворота
8 мин.
Электросила
10 мин.
Волковская
27 мин.
Фрунзенская
27 мин.
Парк Победы
28 мин.
Бухарестская
4 мин.
Балтийская
4 мин.
Нарвская
4 мин.
Ипотечный калькулятор
Заполните 1 анкету — получите предложения от десятков банков на специальных условиях
Программа ипотеки
Стоимость жилья, ₽
Первый взнос, ₽
Срок кредита
от 5.75%
Ставка
от 115 228 ₽
Платеж в месяц
Расчёт носит информационный характер и не является публичной офертой
Похожие объекты





Студия, 40,2 м², 3/4 эт.
Московские ворота
3 мин.








2-комн. квартира, 41,1 м², 8/12 эт.
Московские ворота
8 мин.







2-комн. квартира, 47,3 м², 3/12 эт.
Московские ворота
8 мин.







2-комн. квартира, 45,1 м², 7/12 эт.
Московские ворота
8 мин.
Консультант по новостройкам
18 316 000 ₽
397 483 ₽/м²















