Продается 2-комн. квартира, 40.5 м²
Россия, Санкт-Петербург, Адмиралтейский район, муниципальный округ Измайловское
Фрунзенская
7 мин.
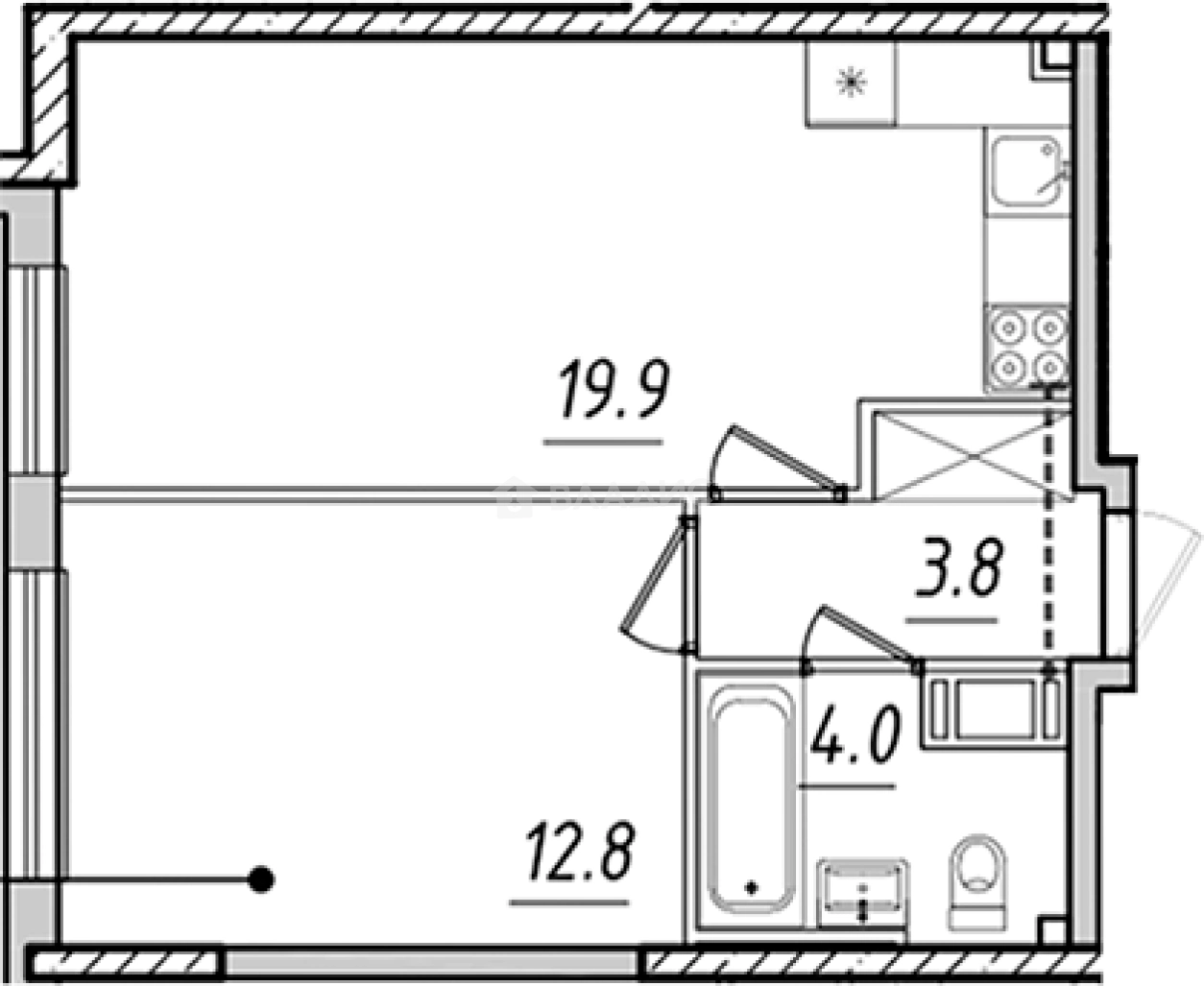
40.5 м²
Общая площадь
12.8 м²
Жилая площадь
19.9 м²
Площадь кухни
6 из 11
Этаж
Описание
В проекте представлены квартиры от студий до двухкомнатных евроформата. Сдаются они с высотой потолков 2.52 метра, увеличенными окнами и отделкой White Box. В квартирах установлены фильтры тонкой очистки воды, ip-аудиоустройства, имеются корзины для кондиционеров.
Территория комплекса благоустроена: выполнено ландшафтное озеленение, обустроены детские и комбинированные площадки со спортивно-игровым оборудованием и антитравматическим покрытием, предусмотрены места для отдыха и велопарковки. Безопасность обеспечивается системой видеонаблюдения на территории, в холлах и паркинге с возможностью онлайн-просмотра камер. На первых этажах расположены коммерческие помещения. Для автомобилей предусмотрен подземный паркинг с бесконтактным въездом.
Проект находится рядом с Московским проспектом, активной магистралью Санкт-Петербурга. Рядом расположены магазины, торговые комплексы, памятники архитектуры, культуры и истории, парки, скверы и сады, детские сады, школы и гимназии, вузы. До Балтийского вокзала можно добраться за 5 минут на автомобиле, до Витебского вокзала, Невского проспекта и ЗСД — за 10 минут. Метро «Технологический институт» находится в 10 минутах пешком.
О квартире
Общая площадь
40.5 м²
Жилая площадь
12.8 м²
Площадь кухни
19.9 м²
Площадь комнат
12.8 м²
Высота потолков
2.52 м
Этаж
6
Окна выходят
На улицу
О доме
Год постройки
2027
Этажность
11
Материал постройки
Монолитный
Парковка
Подземная
Расположение
Россия, Санкт-Петербург, Адмиралтейский район, муниципальный округ Измайловское
Фрунзенская
7 мин.
Балтийская
9 мин.
Звенигородская
19 мин.
Пушкинская
19 мин.
Садовая
22 мин.
Спасская
23 мин.
Ипотечный калькулятор
Заполните 1 анкету — получите предложения от десятков банков на специальных условиях
Программа ипотеки
Стоимость жилья, ₽
Первый взнос, ₽
Срок кредита
от 5.75%
Ставка
от 115 156 ₽
Платеж в месяц
Расчёт носит информационный характер и не является публичной офертой
Похожие объекты





Студия, 40,2 м², 3/4 эт.
Московские ворота
3 мин.








1-комн. квартира, 35,7 м², 8/12 эт.
Московские ворота
8 мин.








2-комн. квартира, 41,1 м², 8/12 эт.
Московские ворота
8 мин.








1-комн. квартира, 36,1 м², 9/12 эт.
Московские ворота
8 мин.
Консультант по новостройкам
18 304 542 ₽
451 964 ₽/м²








