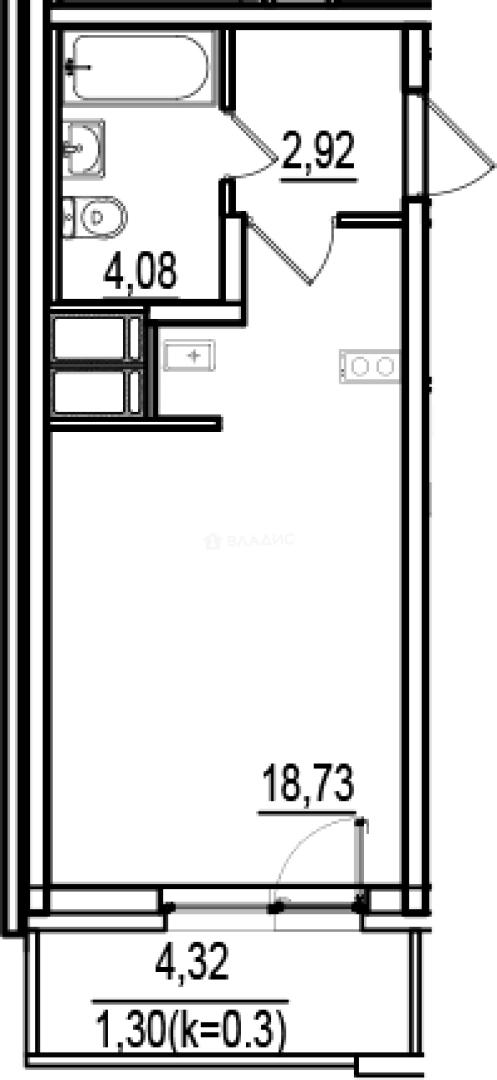
Продается Студия, 25.73 м²
Россия, Санкт-Петербург, улица Тельмана, 37
Улица Дыбенко
22 мин.
25.73 м²
Общая площадь
18.73 м²
Жилая площадь
5 из 18
Этаж
Описание
Для владельцев автомобилей предусмотрен подземный паркинг с лифтом.
Сам комплекс находится в районе с развитой инфраструктурой.
О квартире
Общая площадь
25.73 м²
Жилая площадь
18.73 м²
Площадь комнат
18.73 м²
Высота потолков
2.7 м
Этаж
5
Окна выходят
На улицу
О доме
Год постройки
2027
Этажность
18
Материал постройки
Монолитный
Материал перекрытий
Монолитные
Отопление
Центральное
Парковка
Подземная
Расположение
Россия, Санкт-Петербург, улица Тельмана, 37
Улица Дыбенко
22 мин.
Ломоносовская
4 мин.
Пролетарская
4 мин.
Елизаровская
5 мин.
Проспект Большевиков
5 мин.
Обухово
7 мин.
Ладожская
8 мин.
Новочеркасская
9 мин.
Ипотечный калькулятор
Заполните 1 анкету — получите предложения от десятков банков на специальных условиях
Программа ипотеки
Стоимость жилья, ₽
Первый взнос, ₽
Срок кредита
от 5.75%
Ставка
от 45 148 ₽
Платеж в месяц
Расчёт носит информационный характер и не является публичной офертой
Похожие объекты
Консультант по новостройкам
7 176 465 ₽
278 915 ₽/м²


















