Продается 4-комн. квартира, 92.94 м²
Россия, Санкт-Петербург, набережная реки Карповки, 27Г
Петроградская
6 мин.
92.94 м²
Общая площадь
52.6 м²
Жилая площадь
21.9 м²
Площадь кухни
7 из 8
Этаж
Описание
Всего в доме запроектировано 165 квартир: в наличии планировки, как классического типа, так и евро-формата. Высота потолков в квартирах составляет 3.02 метра в новых корпусах, и от 3.02 до 4.17 метра в реконструированных зданиях. На каждом этаже до четырех квартир.
В состав комплекса входят 2 детских сада, с собственной детской площадкой под навесом. Для автовладельцев предусмотрено два уровня подземного паркинга на 204 места и 25 мест для хранения вело-мототранспорта. Также паркинг оснащен зарядками для электромобилей и самокатов. На внутренней территории дома спроектировано 3 зоны с интерактивными пространствами, озеленением, лаунж-зонами и детскими площадками. А в зимнее время предусмотрено прогревание тротуаров. На первых этажах комплекса располагаются коммерческие помещения, которые будут сдаваться в аренду управляющей компании.
«Meltzer Hall» находится на пересечении набережной реки Карповки и Каменноостровского проспекта. Петроградский район имеет уже давно сложившуюся инфраструктуру. В пешей доступности расположен Ботанический сад. Метро «Петроградская» находится в 5 минутах пешком.
О квартире
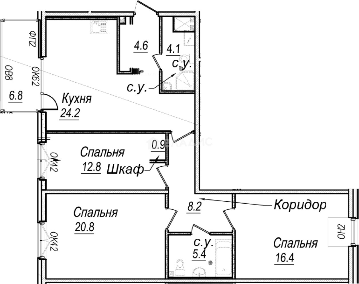
Общая площадь
92.94 м²
Жилая площадь
52.6 м²
Площадь кухни
21.9 м²
Площадь комнат
20.3+16.1+16.2 м²
Высота потолков
3.02 м
Подъезд
4
Этаж
7
Окна выходят
На улицу
О доме
Год постройки
2025
Этажность
8
Материал постройки
Монолитный
Материал перекрытий
Монолитные
Отопление
Центральное
Пассажирских лифтов
1
Грузовых лифтов
1
Парковка
Подземная
Расположение
Россия, Санкт-Петербург, набережная реки Карповки, 27Г
Петроградская
6 мин.
Чкаловская
17 мин.
Чёрная речка
21 мин.
Горьковская
21 мин.
Выборгская
27 мин.
Спортивная
28 мин.
Лесная
4 мин.
Крестовский остров
4 мин.
Ипотечный калькулятор
Заполните 1 анкету — получите предложения от десятков банков на специальных условиях
Программа ипотеки
Стоимость жилья, ₽
Первый взнос, ₽
Срок кредита
от 5.75%
Ставка
от 460 597 ₽
Платеж в месяц
Расчёт носит информационный характер и не является публичной офертой
Похожие объекты










4-комн. квартира, 95,3 м², 4/9 эт.
Чкаловская
8 мин.










4-комн. квартира, 95,1 м², 5/9 эт.
Чкаловская
8 мин.










4-комн. квартира, 95 м², 6/9 эт.
Чкаловская
8 мин.










4-комн. квартира, 99,9 м², 5/9 эт.
Чкаловская
8 мин.
Консультант по новостройкам
73 214 423 ₽
787 761 ₽/м²







