Продается 1-комн. квартира, 35.97 м²
Россия, Санкт-Петербург, Кушелевка
Лесная
10 мин.
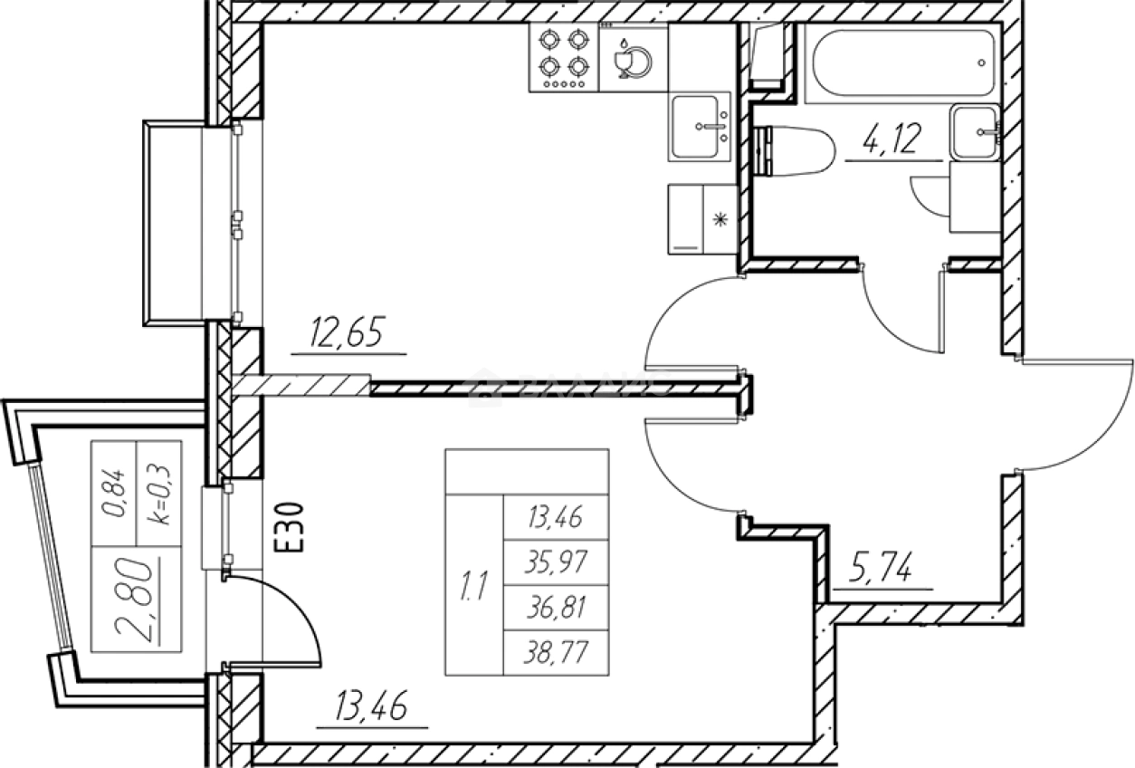
35.97 м²
Общая площадь
13.46 м²
Жилая площадь
12.65 м²
Площадь кухни
2 из 13
Этаж
Описание
Вся территория квартала продумана до мелочей для комфортной жизни: пейзажный композиции, площадки для детей и прогулок с колясками, зоны для отдыха и занятий спортом. На стилобатах 1 и 4 корпусов предусмотрены террасы с лаунж зоной и рабочим пространством. В пространстве квартала будут построены школа и детский сад.
В ЖК "RESPECT" предусмотрены собственная газовая котельная и подземный паркинг для автолюбителей.
О квартире
Общая площадь
35.97 м²
Жилая площадь
13.46 м²
Площадь кухни
12.65 м²
Площадь комнат
13.46 м²
Высота потолков
2.7 м
Этаж
2
Окна выходят
На улицу
О доме
Год постройки
2026
Этажность
13
Материал постройки
Кирпично-монолитный
Материал перекрытий
Монолитные
Отопление
Центральное
Расположение
Россия, Санкт-Петербург, Кушелевка
Лесная
10 мин.
Площадь Мужества
17 мин.
Выборгская
24 мин.
Политехническая
30 мин.
Чёрная речка
5 мин.
Академическая
5 мин.
Петроградская
5 мин.
Площадь Ленина
5 мин.
Ипотечный калькулятор
Заполните 1 анкету — получите предложения от десятков банков на специальных условиях
Программа ипотеки
Стоимость жилья, ₽
Первый взнос, ₽
Срок кредита
от 5.75%
Ставка
от 93 276 ₽
Платеж в месяц
Расчёт носит информационный характер и не является публичной офертой
Похожие объекты
Консультант по новостройкам
14 826 686 ₽
412 196 ₽/м²














