Продается 1-комн. квартира, 28.9 м²
Россия, Санкт-Петербург, Пушкинский район, посёлок Шушары, Старорусский проспект, 5к2
Купчино
4 мин.
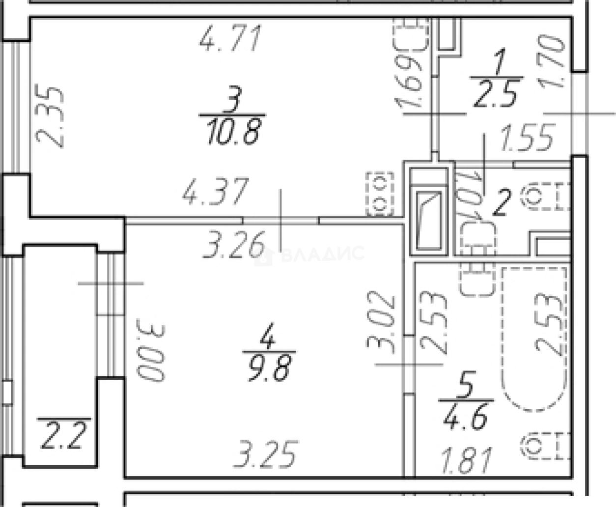
28.9 м²
Общая площадь
9.8 м²
Жилая площадь
10.8 м²
Площадь кухни
7 из 11
Этаж
Описание
В жилом комплексе представлены как студии, так и семейные планировки с несколькими санузлами, удобным холлом и грамотно зонированным пространством для кухонного оборудования. Даже в небольших еврооднушках есть раздельные санузлы. Есть особые планировки с приватной ванной в спальне или планировки, в которых кухня-гостиная и спальня удобно разнесены в разные части квартиры. Высота потолков в проекте достигает — 2,73 метров. С верхних этажей открывается умиротворяющий вид на Пулковские высоты. Сдаются квартиры с чистовой отделкой и без отделки.
Общественные пространства жилого комплекса благоустроенны и закрыты от посторонних. Во дворах, холлах и лифтах установлено видеонаблюдение, в каждом доме есть собственный пост охраны. На первых этажах домов находятся коммерческие помещения. Дворы разделены на несколько функциональных зон: детские игровые комплексы, спортивные площадки с воркаут и пространство для спокойного отдыха. Для автовладельцев предусмотрен подземный паркинг с прямым доступом на лифте.
Жилой комплекс находится в Шушарах. Рядом расположены остановки общественного транспорта, в соседних домах открылись магазины и пекарни. Всего в рамках ближайших перспектив развития квартала предусмотрено 5 детских садов, 4 школы, 2 больших медицинских центра и 4 спортивных комплекса. Метро «Купчино» и выезд на КАД находятся в 15 минутах транспортом. На севере Шушар расположена ж/д станция, от которой можно добраться до Витебского вокзала.
Видео
О квартире
Общая площадь
28.9 м²
Жилая площадь
9.8 м²
Площадь кухни
10.8 м²
Площадь комнат
9.8 м²
Высота потолков
2.68 м
Этаж
7
Окна выходят
На улицу
О доме
Год постройки
2024
Этажность
11
Материал постройки
Кирпично-монолитный
Материал перекрытий
Монолитные
Отопление
Центральное
Парковка
Подземная
Расположение
Россия, Санкт-Петербург, Пушкинский район, посёлок Шушары, Старорусский проспект, 5к2
Купчино
4 мин.
Звёздная
4 мин.
Шушары
7 мин.
Дунайская
7 мин.
Московская
7 мин.
Проспект Славы
9 мин.
Парк Победы
10 мин.
Ленинский проспект
10 мин.
Ипотечный калькулятор
Заполните 1 анкету — получите предложения от десятков банков на специальных условиях
Программа ипотеки
Стоимость жилья, ₽
Первый взнос, ₽
Срок кредита
от 5.75%
Ставка
от 43 409 ₽
Платеж в месяц
Расчёт носит информационный характер и не является публичной офертой
Похожие объекты
Консультант по новостройкам
6 900 000 ₽
238 755 ₽/м²















