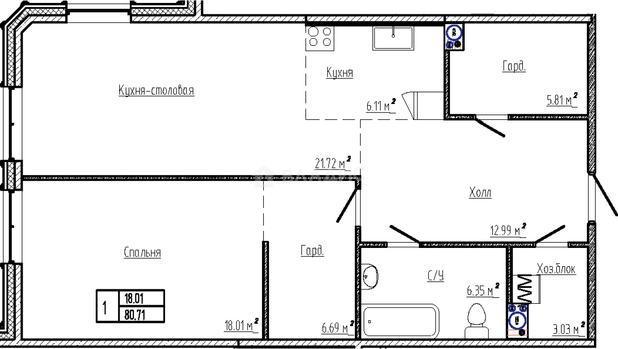
Продается 2-комн. квартира, 81.18 м²
Россия, Санкт-Петербург, 12-я линия Васильевского острова, 41к1литЖ
Василеостровская
6 мин.
81.18 м²
Общая площадь
18.39 м²
Жилая площадь
28.16 м²
Площадь кухни
4 из 6
Этаж
Описание
В проекте «Аmo» представлены ситихаусы и квартиры со свободной планировкой. Квартиры сдаются без отделки и высотой потолков от 2.8 до 3.25 метра. В квартирах предусмотрены эркеры, террасы и панорамные окна.
В ЖК «Аmo» реализована концепция «двор без машин», которая предполагает закрытую дворовую территорию, на которой ведется постоянное видеонаблюдение. На придомовой территории высажены высокоствольные деревья и кустарники, выполнен ландшафтный дизайн в европейском стиле, а в центре двора спроектирована площадь с фонтаном. Для автовладельцев предусмотрен подземный отапливаемый паркинг.
Проект «Аmo» находится в районе «Василеостровский». Инфраструктура развита, в шаговой доступности: школа, детский сад, поликлиники, магазины, высшие учебные заведения, театр, музеи. Рядом с комплексом находится историческое здание XIX века — особняк Э. Э. Бремме. До метро «Василеостровская» — 10 минут пешком.
О квартире
Общая площадь
81.18 м²
Жилая площадь
18.39 м²
Площадь кухни
28.16 м²
Площадь комнат
18.39 м²
Высота потолков
2.8 м
Подъезд
1
Этаж
4
Окна выходят
На улицу
О доме
Год постройки
2024
Этажность
6
Материал постройки
Монолитный
Материал перекрытий
Монолитные
Отопление
Центральное
Грузовых лифтов
1
Парковка
Подземная
Расположение
Россия, Санкт-Петербург, 12-я линия Васильевского острова, 41к1литЖ
Василеостровская
6 мин.
Спортивная
19 мин.
Приморская
25 мин.
Чкаловская
28 мин.
Адмиралтейская
4 мин.
Горьковская
4 мин.
Крестовский остров
5 мин.
Садовая
5 мин.
Ипотечный калькулятор
Заполните 1 анкету — получите предложения от десятков банков на специальных условиях
Программа ипотеки
Стоимость жилья, ₽
Первый взнос, ₽
Срок кредита
от 5.75%
Ставка
от 201 066 ₽
Платеж в месяц
Расчёт носит информационный характер и не является публичной офертой
Похожие объекты








3-комн. квартира, 89,1 м², 3/6 эт.
Василеостровская
6 мин.









3-комн. квартира, 77,0 м², 6/6 эт.
Василеостровская
6 мин.








3-комн. квартира, 89,1 м², 5/6 эт.
Василеостровская
6 мин.








3-комн. квартира, 89,1 м², 2/6 эт.
Василеостровская
6 мин.
Консультант по новостройкам
31 960 566 ₽
393 700 ₽/м²























