Продается 3-комн. квартира, 84.2 м²
Россия, Санкт-Петербург, жилой комплекс Байрон
Проспект Просвещения
21 мин.
84.2 м²
Общая площадь
34 м²
Жилая площадь
29.64 м²
Площадь кухни
4 из 25
Этаж
Описание
В ЖК «Байрон» предложено множество планировочных решений: в наличии квартиры, как классического типа, так и европланировки. Сдаются они без отделки, подчистовой и чистовой отделкой. Большая часть квартир в продаже имеет прекрасные видовые характеристики.
На закрытой от посторонних внутренней территории ЖК «Байрон» разбиты газоны, высажены клумбы. На придомовой территории расположены детские и спортивные площадки. Для владельцев автомобилей предусмотрен 3-уровневый паркинг, на кровле которого расположено благоустроенное пространство с озеленением и площадками для отдыха детей и взрослых.
ЖК «Байрон» находится в Выборгском районе. В 5 минутах пешком находятся детские сады и школы, самые современные, оборудованы бассейнами. В шаговой доступности находится крупный образовательный центр дополнительного образования – детская школа искусств им. Свиридова. Различные спортивные и оздоровительные комплексы, такие как открытая ледовая арена, аквапарк и др., располагаются в 10 минутах пешком. В шаговой доступности магазины, кафе, салоны красоты, банкоматы.
О квартире
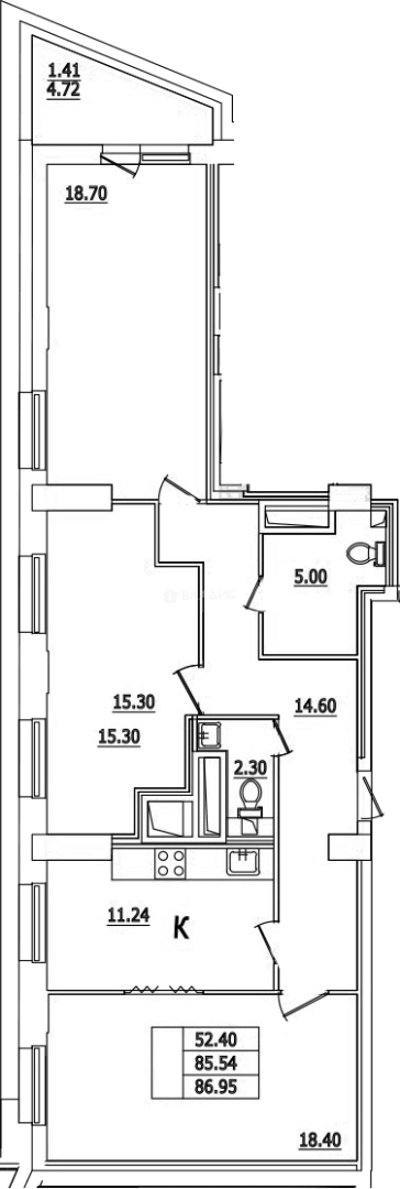
Общая площадь
84.2 м²
Жилая площадь
34 м²
Площадь кухни
29.64 м²
Площадь комнат
15.3+18.7 м²
Высота потолков
2.75 м
Подъезд
1
Этаж
4
Окна выходят
На улицу
О доме
Год постройки
2023
Этажность
25
Материал постройки
Кирпично-монолитный
Материал перекрытий
Монолитные
Отопление
Центральное
Пассажирских лифтов
1
Грузовых лифтов
1
Парковка
Наземная
Расположение
Россия, Санкт-Петербург, жилой комплекс Байрон
Проспект Просвещения
21 мин.
Озерки
29 мин.
Парнас
4 мин.
Гражданский проспект
5 мин.
Удельная
6 мин.
Политехническая
6 мин.
Академическая
6 мин.
Девяткино
7 мин.
Ипотечный калькулятор
Заполните 1 анкету — получите предложения от десятков банков на специальных условиях
Программа ипотеки
Стоимость жилья, ₽
Первый взнос, ₽
Срок кредита
от 5.75%
Ставка
от 110 850 ₽
Платеж в месяц
Расчёт носит информационный характер и не является публичной офертой
Похожие объекты






Студия, 72,9 м², 6/9 эт.
Проспект Просвещения
9 мин.




3-комн. квартира, 77,9 м², 4/25 эт.
Проспект Просвещения
21 мин.




3-комн. квартира, 77,6 м², 11/25 эт.
Проспект Просвещения
21 мин.




3-комн. квартира, 84 м², 17/25 эт.
Проспект Просвещения
21 мин.
Консультант по новостройкам
17 620 169 ₽
209 266 ₽/м²





