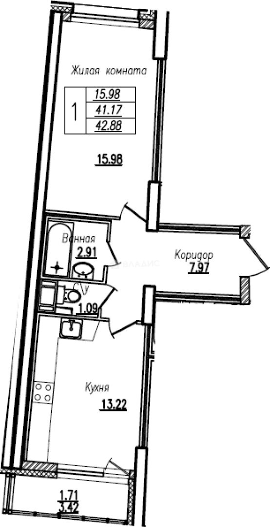
Продается 1-комн. квартира, 41.17 м²
Россия, Санкт-Петербург, жилой комплекс Байрон
Проспект Просвещения
21 мин.
41.17 м²
Общая площадь
15.98 м²
Жилая площадь
13.22 м²
Площадь кухни
8 из 25
Этаж
Описание
В ЖК «Байрон» предложено множество планировочных решений: в наличии квартиры, как классического типа, так и европланировки. Сдаются они без отделки, подчистовой и чистовой отделкой. Большая часть квартир в продаже имеет прекрасные видовые характеристики.
На закрытой от посторонних внутренней территории ЖК «Байрон» разбиты газоны, высажены клумбы. На придомовой территории расположены детские и спортивные площадки. Для владельцев автомобилей предусмотрен 3-уровневый паркинг, на кровле которого расположено благоустроенное пространство с озеленением и площадками для отдыха детей и взрослых.
ЖК «Байрон» находится в Выборгском районе. В 5 минутах пешком находятся детские сады и школы, самые современные, оборудованы бассейнами. В шаговой доступности находится крупный образовательный центр дополнительного образования – детская школа искусств им. Свиридова. Различные спортивные и оздоровительные комплексы, такие как открытая ледовая арена, аквапарк и др., располагаются в 10 минутах пешком. В шаговой доступности магазины, кафе, салоны красоты, банкоматы.
О квартире
Общая площадь
41.17 м²
Жилая площадь
15.98 м²
Площадь кухни
13.22 м²
Площадь комнат
15.98 м²
Высота потолков
2.7 м
Подъезд
1
Этаж
8
Окна выходят
На улицу
О доме
Год постройки
2023
Этажность
25
Материал постройки
Кирпично-монолитный
Материал перекрытий
Монолитные
Отопление
Центральное
Пассажирских лифтов
1
Грузовых лифтов
1
Парковка
Подземная
Расположение
Россия, Санкт-Петербург, жилой комплекс Байрон
Проспект Просвещения
21 мин.
Озерки
28 мин.
Парнас
4 мин.
Гражданский проспект
5 мин.
Удельная
6 мин.
Политехническая
6 мин.
Академическая
6 мин.
Девяткино
7 мин.
Ипотечный калькулятор
Заполните 1 анкету — получите предложения от десятков банков на специальных условиях
Программа ипотеки
Стоимость жилья, ₽
Первый взнос, ₽
Срок кредита
от 5.75%
Ставка
от 66 195 ₽
Платеж в месяц
Расчёт носит информационный характер и не является публичной офертой
Похожие объекты




1-комн. квартира, 42,9 м², 3/25 эт.
Проспект Просвещения
21 мин.




1-комн. квартира, 37,0 м², 21/25 эт.
Проспект Просвещения
21 мин.






1-комн. квартира, 41,8 м², 1/13 эт.
Проспект Просвещения
24 мин.




1-комн. квартира, 35,7 м², 6/25 эт.
Проспект Просвещения
21 мин.
Консультант по новостройкам
10 522 033 ₽
255 576 ₽/м²












