Продается 1-комн. квартира, 32.93 м²
Россия, Санкт-Петербург, улица Тамбасова, 5Н
Проспект Ветеранов
15 мин.
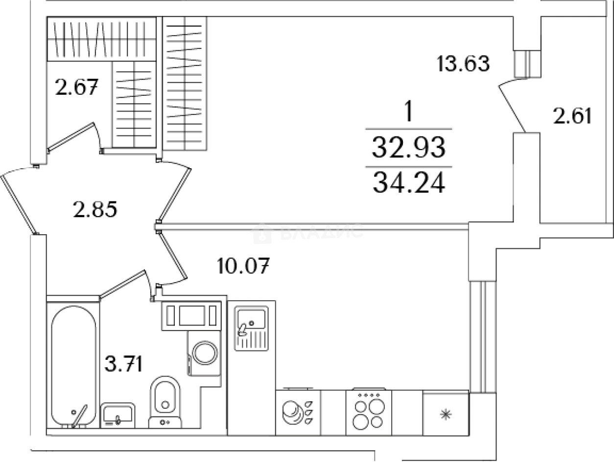
32.93 м²
Общая площадь
13.63 м²
Жилая площадь
10.07 м²
Площадь кухни
5 из 9
Этаж
Описание
В комплексе предусмотрены закрытые дворы с видеонаблюдением, подземные паркинги с отоплением, современные инженерные системы, залы ожидания, кладовые и места для колясок и спортивного инвентаря.
В рамках проекта будут построены два детских сада на 200 малышей каждый, а также школа на 1125 учеников. На первых этажах домов разместятся коммерческие помещения. Жилой комплекс расположен в Красносельском районе с широко развитой инфраструктурой, где есть все необходимое для комфортной жизни — магазины, аптеки, школы, сады, парки.
О квартире
Общая площадь
32.93 м²
Жилая площадь
13.63 м²
Площадь кухни
10.07 м²
Площадь комнат
13.63 м²
Высота потолков
2.75 м
Этаж
5
Окна выходят
На улицу
О доме
Год постройки
2026
Этажность
9
Материал постройки
Монолитный
Материал перекрытий
Монолитные
Отопление
Центральное
Парковка
Подземная
Расположение
Россия, Санкт-Петербург, улица Тамбасова, 5Н
Проспект Ветеранов
15 мин.
Ленинский проспект
10 мин.
Автово
10 мин.
Кировский завод
12 мин.
Московская
14 мин.
Нарвская
15 мин.
Парк Победы
15 мин.
Электросила
16 мин.
Ипотечный калькулятор
Заполните 1 анкету — получите предложения от десятков банков на специальных условиях
Программа ипотеки
Стоимость жилья, ₽
Первый взнос, ₽
Срок кредита
от 5.75%
Ставка
от 69 176 ₽
Платеж в месяц
Расчёт носит информационный характер и не является публичной офертой
Похожие объекты


1-комн. квартира, 31,2 м², 8/9 эт.
Проспект Ветеранов
15 мин.







1-комн. квартира, 30,9 м², 9/9 эт.
Проспект Ветеранов
8 мин.




2-комн. квартира, 36,1 м², 5/9 эт.
Проспект Ветеранов
15 мин.







1-комн. квартира, 32,8 м², 6/9 эт.
Проспект Ветеранов
8 мин.
Консультант по новостройкам
10 995 877 ₽
333 917 ₽/м²





