Продается 2-комн. квартира, 61.74 м²
Россия, Санкт-Петербург, исторический район Сосновая Поляна
Проспект Ветеранов
8 мин.
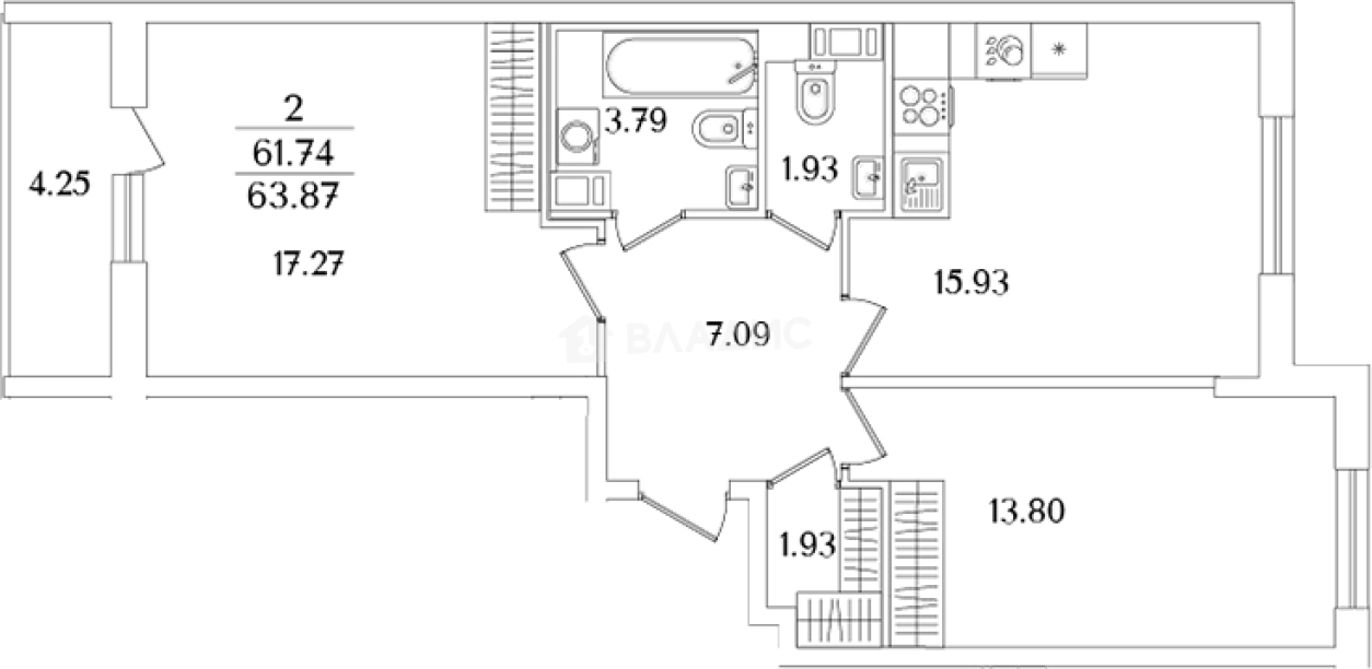
61.74 м²
Общая площадь
31.07 м²
Жилая площадь
15.93 м²
Площадь кухни
5 из 9
Этаж
Описание
В проекте предложено множество планировочных решений: в наличии квартиры, как классического типа, так и европланировки. Сдаются они с отделкой «White box» и чистовой отделкой в 2 цветах, высотой потолков до 3,15 метров. Есть возможность дозаказа чистовой отделки.
На территории комплекса имеются спортивные и детские площадки, разделенные по возрастам, а также места для отдыха. Зонирование создано с помощью озеленения, дорожек, подпорных стен и геопластики. В проекте предусмотрен подземный паркинг и кладовые на -1 этаже, а также система контроля доступа и видеонаблюдение.
Жилой комплекс расположен в Красносельском районе. В пешей доступности находятся 5 парков и южный берег Финского залива, а также близость к царским пригородам Петербурга — Стрельна, Петергоф и Ораниенбаум. До метро «Проспект Ветеранов» можно добраться за 15 минут на автомобиле.
О квартире
Общая площадь
61.74 м²
Жилая площадь
31.07 м²
Площадь кухни
15.93 м²
Площадь комнат
17.27+13.8 м²
Высота потолков
2.75 м
Этаж
5
Окна выходят
На улицу
О доме
Год постройки
2027
Этажность
9
Материал постройки
Кирпично-монолитный
Материал перекрытий
Монолитные
Отопление
Центральное
Парковка
Подземная
Расположение
Россия, Санкт-Петербург, исторический район Сосновая Поляна
Проспект Ветеранов
8 мин.
Ленинский проспект
10 мин.
Автово
10 мин.
Кировский завод
12 мин.
Московская
15 мин.
Нарвская
15 мин.
Парк Победы
15 мин.
Электросила
16 мин.
Ипотечный калькулятор
Заполните 1 анкету — получите предложения от десятков банков на специальных условиях
Программа ипотеки
Стоимость жилья, ₽
Первый взнос, ₽
Срок кредита
от 5.75%
Ставка
от 126 531 ₽
Платеж в месяц
Расчёт носит информационный характер и не является публичной офертой
Похожие объекты







3-комн. квартира, 69,0 м², 3/14 эт.
Проспект Ветеранов
9 мин.







3-комн. квартира, 69,0 м², 6/14 эт.
Проспект Ветеранов
9 мин.







3-комн. квартира, 69,0 м², 4/14 эт.
Проспект Ветеранов
9 мин.







3-комн. квартира, 56,3 м², 3/9 эт.
Проспект Ветеранов
8 мин.
Консультант по новостройкам
20 112 716 ₽
325 765 ₽/м²









