Продается 5-комн. квартира, 156.73 м²
Россия, Санкт-Петербург, 13-я линия Васильевского острова, 50
Василеостровская
7 мин.
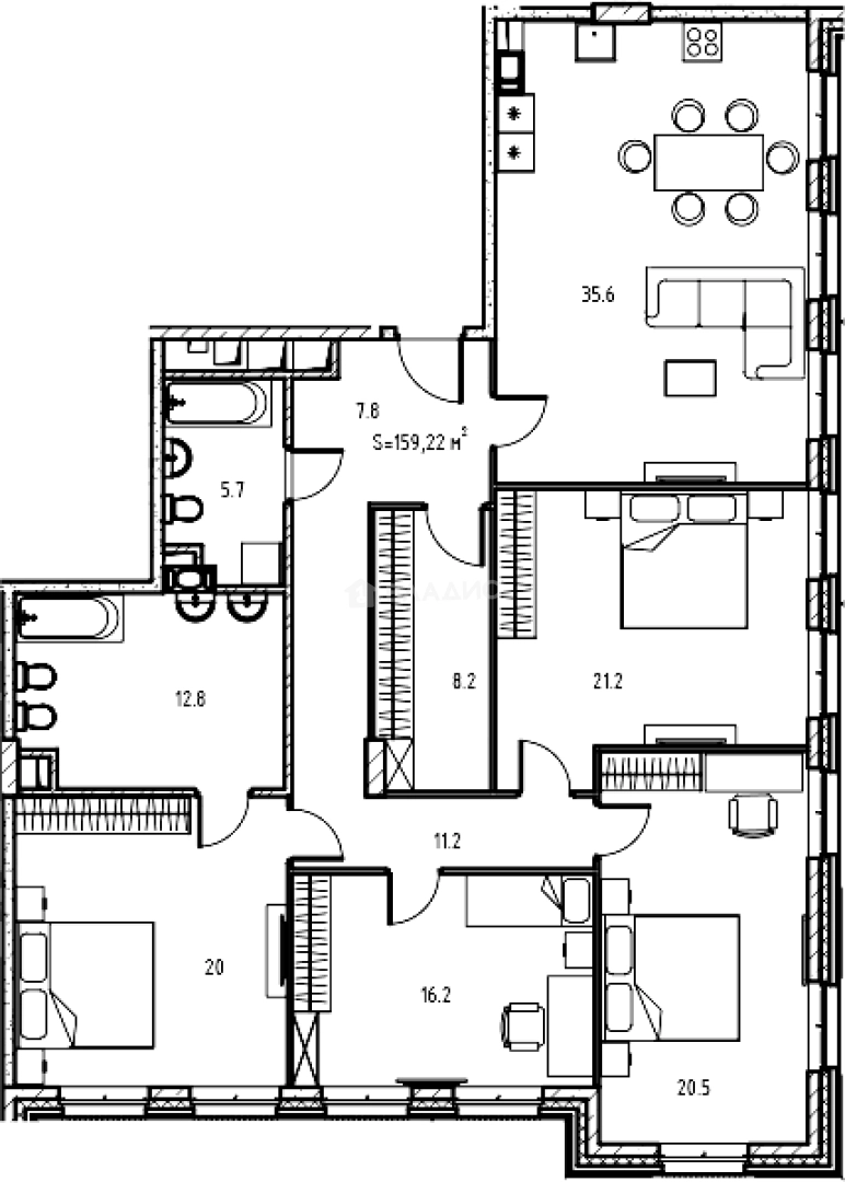
156.73 м²
Общая площадь
77.9 м²
Жилая площадь
35.6 м²
Площадь кухни
5 из 7
Этаж
Описание
В жилом комплексе всего 61 квартира с минимальной площадью от 80 кв. метров. В проекте предложены преимущественно европейские планировки с большими кухнями-гостиными, правильными по форме комнатами, просторными ванными комнатами. На последнем этаже расположены видовые пентхаусы с открытыми террасами. Квартиры сдаются без стен. Высота потолков составляет 3 метра. Предусмотрена возможность установки системы «умный дом». В квартирах установлено большое количество окон Sсhuсo c тонкими алюминиевыми профилями цвета черного графита.
На территории жилого комплекса предусмотрен закрытый благоустроенный внутренний двор с небольшими фонтанами, местами для отдыха и современной безопасной детской игровой площадкой. С одной из сторон двор граничит с зелёной дубовой рощей. Охрана и видеонаблюдение ведется на всей территории комплекса. Контроль доступа на территорию осуществляется с помощью электронных меток-ключей. Установка индивидуальных блоков кондиционирования предусмотрена на крыше дома. Для владельцев автомобилей спроектирован подземный паркинг.
Жилой комплекс расположен в центре Василеостровского района, недалеко от метро «Василеостровская». В пешей доступности от дома находятся детские сады, школы, магазины, кафе, медицинские учреждения, салоны красоты и крупнейшие профессиональные спортивные комплексы города.
О квартире
Общая площадь
156.73 м²
Жилая площадь
77.9 м²
Площадь кухни
35.6 м²
Площадь комнат
21.2+20.5+16.2+20 м²
Высота потолков
3 м
Этаж
5
Окна выходят
На улицу
О доме
Год постройки
2024
Этажность
7
Материал постройки
Монолитный
Материал перекрытий
Монолитные
Отопление
Центральное
Парковка
Подземная
Расположение
Россия, Санкт-Петербург, 13-я линия Васильевского острова, 50
Василеостровская
7 мин.
Горный институт
16 мин.
Спортивная
20 мин.
Приморская
24 мин.
Чкаловская
30 мин.
Адмиралтейская
4 мин.
Горьковская
5 мин.
Крестовский остров
5 мин.
Ипотечный калькулятор
Заполните 1 анкету — получите предложения от десятков банков на специальных условиях
Программа ипотеки
Стоимость жилья, ₽
Первый взнос, ₽
Срок кредита
от 5.75%
Ставка
от 610 785 ₽
Платеж в месяц
Расчёт носит информационный характер и не является публичной офертой
Похожие объекты






5-комн. квартира, 159,2 м², 4/7 эт.
Василеостровская
7 мин.







5-комн. квартира, 179,4 м², 4/9 эт.
Крестовский остров
12 мин.








5-комн. квартира, 178,8 м², 2/9 эт.
Крестовский остров
13 мин.








4-комн. квартира, 172,7 м², 6/9 эт.
Крестовский остров
14 мин.
Консультант по новостройкам
97 087 586 ₽
619 458 ₽/м²







