Продается 2-комн. квартира, 53.7 м²
Россия, Санкт-Петербург, Пушкинский район, посёлок Шушары, ЖК Клюква Парк
Звёздная
4 мин.
53.7 м²
Общая площадь
25.7 м²
Жилая площадь
14.3 м²
Площадь кухни
2 из 12
Этаж
Описание
В проекте предусмотрено 583 квартиры, представленные как в классическом, так и в евроформате. Квартиры сдаются без отделки, с высотой потолков 2,74 метра и стандартными окнами. Во всех квартирах, кроме второго этажа, предусмотрены балконы и лоджии с витражным остеклением.
Территория комплекса благоустроена: установлены детские и спортивные площадки, предусмотрены зоны для отдыха. На первом этаже расположены коммерческие помещения. Для хранения личного транспорта предусмотрены подземный паркинг и велопарковки.
Жилой комплекс находится в поселке Шушары. В пешей доступности расположены школы, детские сады и спортивные учреждения. За 30 минут транспортом можно добраться до города Пушкин, где можно прогуляться по паркам и садам. Метро «Купчино» находится в 15 минутах транспортом.
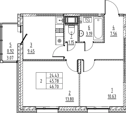
О квартире
Общая площадь
53.7 м²
Жилая площадь
25.7 м²
Площадь кухни
14.3 м²
Площадь комнат
13.8+11.9 м²
Высота потолков
2.74 м
Этаж
2
Окна выходят
На улицу
О доме
Год постройки
2028
Этажность
12
Материал постройки
Монолитный
Материал перекрытий
Монолитные
Отопление
Центральное
Парковка
Подземная
Расположение
Россия, Санкт-Петербург, Пушкинский район, посёлок Шушары, ЖК Клюква Парк
Звёздная
4 мин.
Купчино
4 мин.
Московская
7 мин.
Дунайская
7 мин.
Шушары
7 мин.
Проспект Славы
9 мин.
Ленинский проспект
9 мин.
Проспект Ветеранов
10 мин.
Ипотечный калькулятор
Заполните 1 анкету — получите предложения от десятков банков на специальных условиях
Программа ипотеки
Стоимость жилья, ₽
Первый взнос, ₽
Срок кредита
от 5.75%
Ставка
от 77 397 ₽
Платеж в месяц
Расчёт носит информационный характер и не является публичной офертой
Похожие объекты





3-комн. квартира, 55,2 м², 2/12 эт.





2-комн. квартира, 45,8 м², 7/12 эт.



2-комн. квартира, 47,2 м², 3/12 эт.
Звёздная
4 мин.



2-комн. квартира, 46,9 м², 11/12 эт.
Звёздная
4 мин.
Консультант по новостройкам
12 302 647 ₽
229 100 ₽/м²




