Продается квартира со св. планировкой, 86.13 м²
Россия, Санкт-Петербург, Кронштадт, Цитадельская дорога, 10
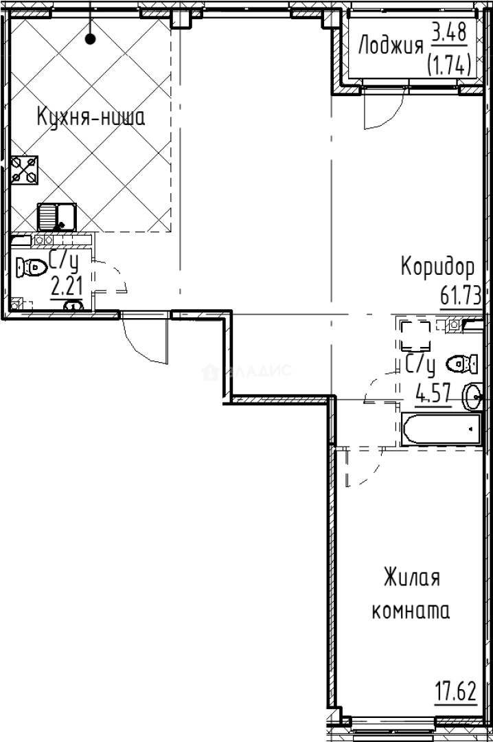
86.13 м²
Общая площадь
17.62 м²
Жилая площадь
61.73 м²
Площадь кухни
2 из 4
Этаж
Описание
В проекте предложено множество планировочных решений: классические и европланировки, квартиры с мастер-спальнями, местами для хранения, эркерами, французскими балконами, террасами и патио. На верхних этажах расположены просторные лофты. Квартиры сдаются с чистовой в 2-х цветовых вариантах и без стен, высотой потолков до 3.34 метров и увеличенными окнами. Имеются квартиры с видом на Балтийское море.
Территория комплекса закрыта от машин и благоустроена: выполнено ландшафтное озеленение, установлены детские площадки, места для отдыха и прогулок. Для жителей спроектирован собственный яхтенный порт, расположенный в Каботажной гавани, детский сад, кабинет врача общей практики, торговая галерея. Для владельцев автомобилей предусмотрен подземный паркинг.
Жилой комплекс расположен в г. Кронштадт. Рядом расположены магазины, музеи, парки, кафе и рестораны, школы, детские сады. Поблизости находятся Якорная площадь и Морской Никольский собор. До метро «Беговая» можно добраться за 30 минут транспортом, до аэропорта Пулково – за 50 минут.
О квартире
Общая площадь
86.13 м²
Жилая площадь
17.62 м²
Площадь кухни
61.73 м²
Площадь комнат
17.62 м²
Высота потолков
3.04 м
Этаж
2
Окна выходят
На улицу
О доме
Год постройки
2026
Этажность
4
Материал постройки
Кирпично-монолитный
Материал перекрытий
Монолитные
Отопление
Центральное
Расположение
Россия, Санкт-Петербург, Кронштадт, Цитадельская дорога, 10
Ипотечный калькулятор
Заполните 1 анкету — получите предложения от десятков банков на специальных условиях
Программа ипотеки
Стоимость жилья, ₽
Первый взнос, ₽
Срок кредита
от 5.75%
Ставка
от 132 937 ₽
Платеж в месяц
Расчёт носит информационный характер и не является публичной офертой
Похожие объекты






Свободная планировка, 96,2 м², 3/4 эт.






3-комн. квартира, 80,0 м², 1/4 эт.






Свободная планировка, 80,8 м², 4/4 эт.






Свободная планировка, 85,1 м², 2/4 эт.
Консультант по новостройкам
21 131 040 ₽
245 339 ₽/м²







