Продается 2-комн. квартира, 91.51 м²
Россия, Санкт-Петербург, Кронштадт
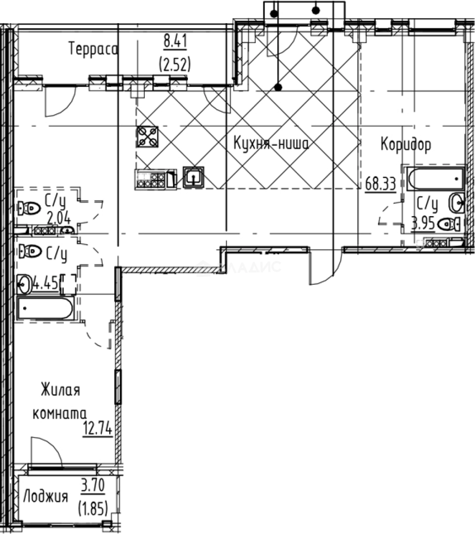
91.51 м²
Общая площадь
12.74 м²
Жилая площадь
68.33 м²
Площадь кухни
4 из 4
Этаж
Описание
В проекте предложено множество планировочных решений: классические и европланировки, квартиры с мастер-спальнями, местами для хранения, эркерами, французскими балконами, террасами и патио. На верхних этажах расположены просторные лофты. Квартиры сдаются с чистовой в 2-х цветовых вариантах и без стен, высотой потолков до 3.34 метров и увеличенными окнами. Имеются квартиры с видом на Балтийское море.
Территория комплекса закрыта от машин и благоустроена: выполнено ландшафтное озеленение, установлены детские площадки, места для отдыха и прогулок. Для жителей спроектирован собственный яхтенный порт, расположенный в Каботажной гавани, детский сад, кабинет врача общей практики, торговая галерея. Для владельцев автомобилей предусмотрен подземный паркинг.
Жилой комплекс расположен в г. Кронштадт. Рядом расположены магазины, музеи, парки, кафе и рестораны, школы, детские сады. Поблизости находятся Якорная площадь и Морской Никольский собор. До метро «Беговая» можно добраться за 30 минут транспортом, до аэропорта Пулково – за 50 минут.
О квартире
Общая площадь
91.51 м²
Жилая площадь
12.74 м²
Площадь кухни
68.33 м²
Площадь комнат
12.74 м²
Высота потолков
3.4 м
Этаж
4
Окна выходят
На улицу
О доме
Год постройки
2026
Этажность
4
Материал постройки
Кирпично-монолитный
Материал перекрытий
Монолитные
Отопление
Центральное
Парковка
Подземная
Расположение
Россия, Санкт-Петербург, Кронштадт
Ипотечный калькулятор
Заполните 1 анкету — получите предложения от десятков банков на специальных условиях
Программа ипотеки
Стоимость жилья, ₽
Первый взнос, ₽
Срок кредита
от 5.75%
Ставка
от 156 681 ₽
Платеж в месяц
Расчёт носит информационный характер и не является публичной офертой
Похожие объекты






Свободная планировка, 80,8 м², 4/4 эт.






Свободная планировка, 94,9 м², 4/4 эт.






Свободная планировка, 92,9 м², 3/4 эт.






Свободная планировка, 95,2 м², 3/4 эт.
Консультант по новостройкам
24 905 280 ₽
272 160 ₽/м²







