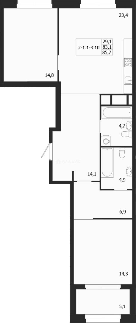
Продается 2-комн. квартира, 83.15 м²
Россия, Санкт-Петербург, улица Профессора Попова, 47
Чкаловская
14 мин.
83.15 м²
Общая площадь
29.1 м²
Жилая площадь
23.4 м²
Площадь кухни
7 из 9
Этаж
Описание
В комплексе будет возведен зимний сад с живыми растениями и деревьями, коворкинг зонами, пространством для отдыха, переговорные, пространство для занятий фитнесом и детские зоны.
Для владельцев автомобилей предусмотрен подземный двухуровневый паркинг с доступом из лифта.
О квартире
Общая площадь
83.15 м²
Жилая площадь
29.1 м²
Площадь кухни
23.4 м²
Площадь комнат
14.8+14.3 м²
Высота потолков
3 м
Этаж
7
Окна выходят
На улицу
О доме
Год постройки
2027
Этажность
9
Материал постройки
Монолитный
Материал перекрытий
Монолитные
Отопление
Центральное
Парковка
Подземная
Расположение
Россия, Санкт-Петербург, улица Профессора Попова, 47
Чкаловская
14 мин.
Петроградская
16 мин.
Крестовский остров
20 мин.
Чёрная речка
20 мин.
Спортивная
27 мин.
Горьковская
29 мин.
Старая Деревня
4 мин.
Выборгская
5 мин.
Ипотечный калькулятор
Заполните 1 анкету — получите предложения от десятков банков на специальных условиях
Программа ипотеки
Стоимость жилья, ₽
Первый взнос, ₽
Срок кредита
от 5.75%
Ставка
от 450 688 ₽
Платеж в месяц
Расчёт носит информационный характер и не является публичной офертой
Похожие объекты










4-комн. квартира, 95,3 м², 4/9 эт.
Чкаловская
8 мин.










4-комн. квартира, 95,1 м², 5/9 эт.
Чкаловская
8 мин.










4-комн. квартира, 95 м², 6/9 эт.
Чкаловская
8 мин.








3-комн. квартира, 80,0 м², 8/9 эт.
Чкаловская
4 мин.
Консультант по новостройкам
71 639 370 ₽
861 568 ₽/м²
















