Продается 3-комн. квартира, 121.8 м²
Россия, Санкт-Петербург, территория Петроградская сторона, ЖК ЛДМ
Чкаловская
14 мин.
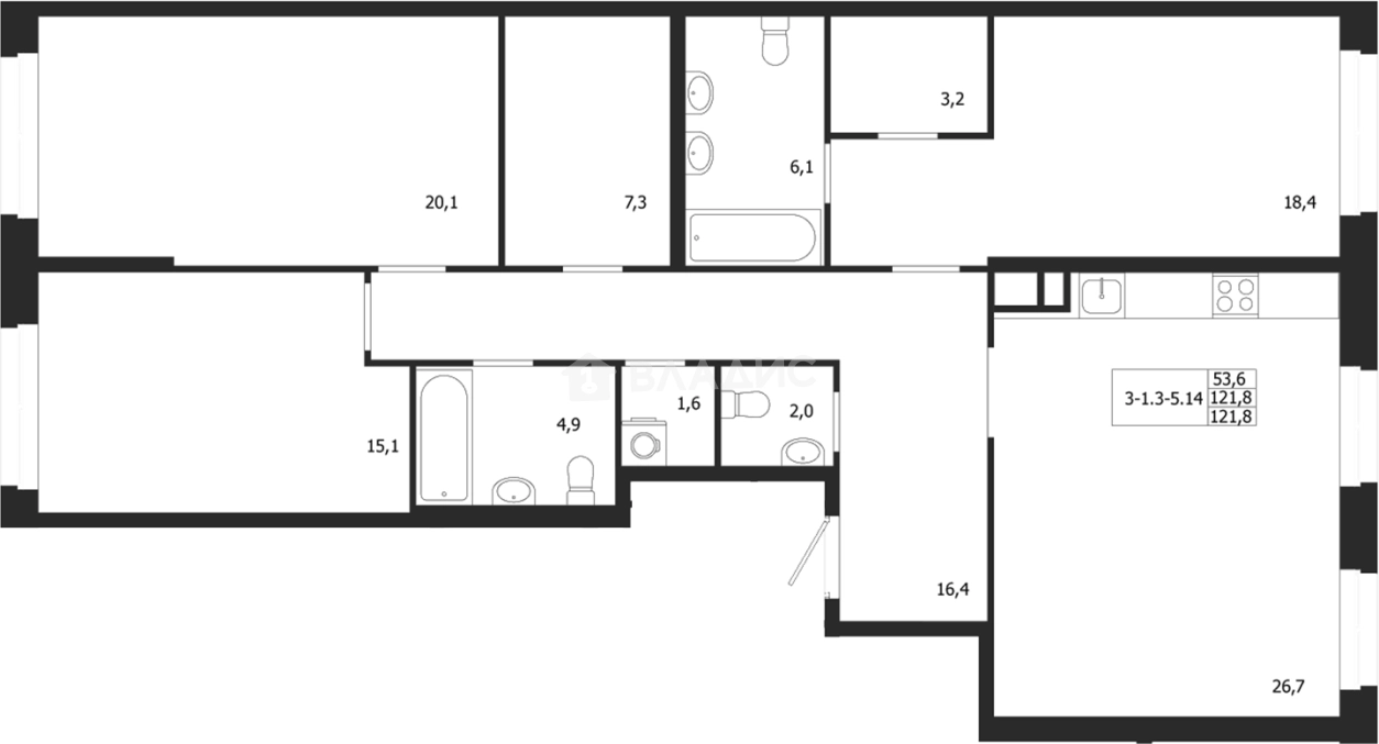
121.8 м²
Общая площадь
53.6 м²
Жилая площадь
26.7 м²
Площадь кухни
5 из 9
Этаж
Описание
В комплексе будет возведен зимний сад с живыми растениями и деревьями, коворкинг зонами, пространством для отдыха, переговорные, пространство для занятий фитнесом и детские зоны.
Для владельцев автомобилей предусмотрен подземный двухуровневый паркинг с доступом из лифта.
О квартире
Общая площадь
121.8 м²
Жилая площадь
53.6 м²
Площадь кухни
26.7 м²
Площадь комнат
15.1+20.1+18.4 м²
Высота потолков
3 м
Этаж
5
Окна выходят
На улицу
О доме
Год постройки
2027
Этажность
9
Материал постройки
Монолитный
Материал перекрытий
Монолитные
Отопление
Центральное
Парковка
Подземная
Расположение
Россия, Санкт-Петербург, территория Петроградская сторона, ЖК ЛДМ
Чкаловская
14 мин.
Петроградская
17 мин.
Крестовский остров
19 мин.
Чёрная речка
22 мин.
Спортивная
26 мин.
Горьковская
29 мин.
Старая Деревня
4 мин.
Василеостровская
5 мин.
Ипотечный калькулятор
Заполните 1 анкету — получите предложения от десятков банков на специальных условиях
Программа ипотеки
Стоимость жилья, ₽
Первый взнос, ₽
Срок кредита
от 5.75%
Ставка
от 560 526 ₽
Платеж в месяц
Расчёт носит информационный характер и не является публичной офертой
Похожие объекты







4-комн. квартира, 111,3 м², 8/9 эт.
Чкаловская
4 мин.







3-комн. квартира, 116,5 м², 3/9 эт.
Чкаловская
14 мин.






4-комн. квартира, 123,6 м², 6/8 эт.
Петроградская
6 мин.







3-комн. квартира, 116,6 м², 5/9 эт.
Чкаловская
14 мин.
Консультант по новостройкам
89 098 630 ₽
731 516 ₽/м²














