Продается Студия, 24.44 м²
Россия, Санкт-Петербург, Лиговский проспект, 127
Лиговский проспект
4 мин.
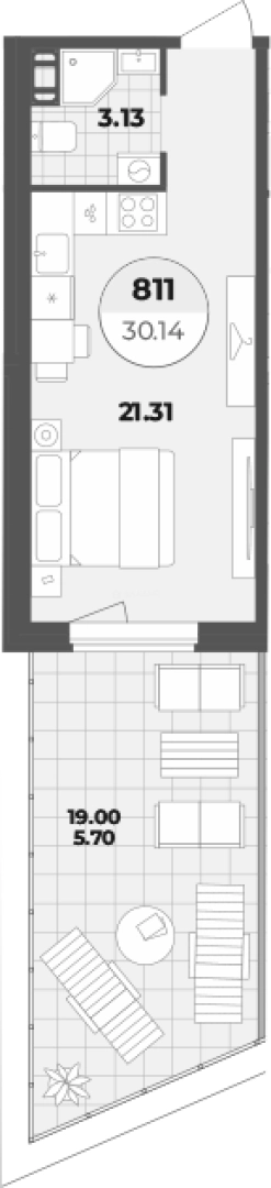
24.44 м²
Общая площадь
21.31 м²
Жилая площадь
8 из 10
Этаж
Описание
Проект предусматривает большое разнообразие планировок: от 18 до 158 кв.м. Всего клубный дом включает в себя 179 апартаментов, 6 из которых расположены доме Рыжкина. Апартаменты сдаются с террасами, балконами, лоджиями и мансардными окнами. Предусмотрен подземный паркинг на 33 машиноместа.
Жилой комплекс большим количеством городских достопримечательностей, зданиями культурно-исторического значения, музеями, театрами, концертно-выставочными залами, множеством скверов и садов.
ЖК находится в самом сердце города, в центральном районе Петербурга. Проект окружен большим количеством городских достопримечательностей, зданиями культурно-исторического значения, музеями, театрами, концертно-выставочными залами, множеством скверов и садов. В шаговой доступности находятся четыре станции метро. «Лиговский проспект» и «Обводный канал», путь до них составит менее 7 минут пешком, до станций метро «Пушкинская» и «Звенигородская» можно дойти за 15 минут.
О квартире
Общая площадь
24.44 м²
Жилая площадь
21.31 м²
Площадь комнат
21.31 м²
Высота потолков
2.7 м
Этаж
8
Окна выходят
На улицу
О доме
Год постройки
2026
Этажность
10
Материал постройки
Монолитный
Парковка
Подземная
Расположение
Россия, Санкт-Петербург, Лиговский проспект, 127
Лиговский проспект
4 мин.
Обводный Канал
5 мин.
Владимирская
13 мин.
Достоевская
14 мин.
Звенигородская
15 мин.
Пушкинская
15 мин.
Площадь Восстания
18 мин.
Маяковская
18 мин.
Ипотечный калькулятор
Заполните 1 анкету — получите предложения от десятков банков на специальных условиях
Программа ипотеки
Стоимость жилья, ₽
Первый взнос, ₽
Срок кредита
от 5.75%
Ставка
от 75 059 ₽
Платеж в месяц
Расчёт носит информационный характер и не является публичной офертой
Похожие объекты





1-комн. квартира, 26,3 м², 6/13 эт.
Бухарестская
9 мин.




Студия, 26,5 м², 3/11 эт.
Фрунзенская
7 мин.







Студия, 22,2 м², 9/11 эт.
Фрунзенская
7 мин.








Студия, 22,2 м², 10/11 эт.
Фрунзенская
7 мин.
Консультант по новостройкам
11 930 919 ₽
488 172 ₽/м²







