Продается 3-комн. квартира, 69.54 м²
Россия, Санкт-Петербург, Сестрорецк, ЖК Лисино
Беговая
18 мин.
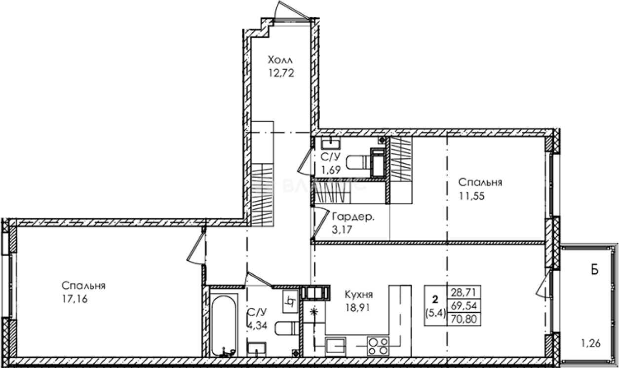
69.54 м²
Общая площадь
28.71 м²
Жилая площадь
18.91 м²
Площадь кухни
2 из 4
Этаж
Описание
Ключевая особенность ЖК "Лисино" — парк посреди жилого квартала, который будет совмещать в себе разнообразную флору и пространство для приятного досуга и отдыха жителей города-парка : площадь с навесом, эко-тропы, пространство для йоги, собственное озеро и живописная набережная вокруг.
Сам комплекс предоставляет широкое разнообразие планировок квартир: от стандартных студий и квартир евроформата до квартир с саунами и мастер-спальнями. Для ценителей уникальных пространств застройщик предлагает варианты урбан-виллы или двухуровневые квартиры!
О квартире
Общая площадь
69.54 м²
Жилая площадь
28.71 м²
Площадь кухни
18.91 м²
Площадь комнат
17.16+11.55 м²
Высота потолков
2.75 м
Этаж
2
Окна выходят
На улицу
О доме
Год постройки
2025
Этажность
4
Материал постройки
Кирпично-монолитный
Материал перекрытий
Монолитные
Отопление
Центральное
Парковка
Наземная
Расположение
Россия, Санкт-Петербург, Сестрорецк, ЖК Лисино
Беговая
18 мин.
Зенит
19 мин.
Комендантский проспект
21 мин.
Старая Деревня
22 мин.
Крестовский остров
23 мин.
Приморская
23 мин.
Ипотечный калькулятор
Заполните 1 анкету — получите предложения от десятков банков на специальных условиях
Программа ипотеки
Стоимость жилья, ₽
Первый взнос, ₽
Срок кредита
от 5.75%
Ставка
от 124 677 ₽
Платеж в месяц
Расчёт носит информационный характер и не является публичной офертой
Похожие объекты






3-комн. квартира, 72,3 м², 2/4 эт.
Беговая
18 мин.






3-комн. квартира, 64,8 м², 1/4 эт.
Беговая
18 мин.







3-комн. квартира, 69,5 м², 3/4 эт.
Беговая
18 мин.







3-комн. квартира, 70,2 м², 1/4 эт.
Беговая
18 мин.
Консультант по новостройкам
19 818 000 ₽
284 988 ₽/м²











