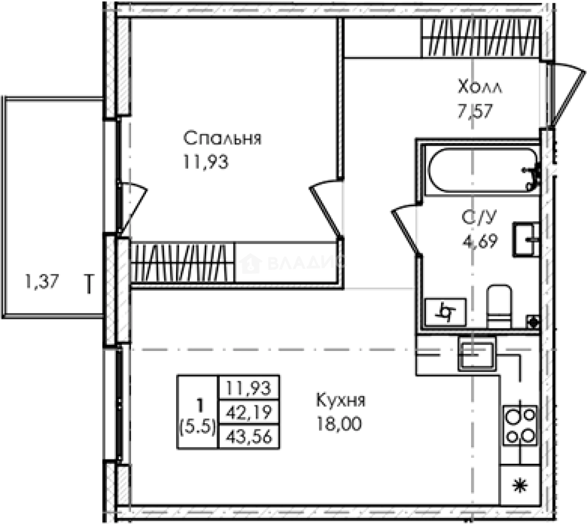
Продается 2-комн. квартира, 42.19 м²
Россия, Санкт-Петербург, Сестрорецк, ЖК Лисино
Беговая
18 мин.
42.19 м²
Общая площадь
11.93 м²
Жилая площадь
18 м²
Площадь кухни
1 из 4
Этаж
Описание
Ключевая особенность ЖК "Лисино" — парк посреди жилого квартала, который будет совмещать в себе разнообразную флору и пространство для приятного досуга и отдыха жителей города-парка : площадь с навесом, эко-тропы, пространство для йоги, собственное озеро и живописная набережная вокруг.
Сам комплекс предоставляет широкое разнообразие планировок квартир: от стандартных студий и квартир евроформата до квартир с саунами и мастер-спальнями. Для ценителей уникальных пространств застройщик предлагает варианты урбан-виллы или двухуровневые квартиры!
О квартире
Общая площадь
42.19 м²
Жилая площадь
11.93 м²
Площадь кухни
18 м²
Площадь комнат
11.93 м²
Высота потолков
2.75 м
Этаж
1
Окна выходят
На улицу
О доме
Год постройки
2025
Этажность
4
Материал постройки
Кирпично-монолитный
Материал перекрытий
Монолитные
Отопление
Центральное
Парковка
Наземная
Расположение
Россия, Санкт-Петербург, Сестрорецк, ЖК Лисино
Беговая
18 мин.
Зенит
20 мин.
Старая Деревня
22 мин.
Приморская
24 мин.
Ипотечный калькулятор
Заполните 1 анкету — получите предложения от десятков банков на специальных условиях
Программа ипотеки
Стоимость жилья, ₽
Первый взнос, ₽
Срок кредита
от 5.75%
Ставка
от 86 188 ₽
Платеж в месяц
Расчёт носит информационный характер и не является публичной офертой
Похожие объекты







2-комн. квартира, 42,0 м², 3/4 эт.
Беговая
18 мин.







2-комн. квартира, 42,2 м², 1/4 эт.
Беговая
18 мин.







2-комн. квартира, 39,7 м², 4/4 эт.
Беговая
18 мин.






2-комн. квартира, 41,3 м², 2/4 эт.
Беговая
18 мин.
Консультант по новостройкам
13 700 000 ₽
324 722 ₽/м²









