Продается Студия, 25.69 м²
Россия, Санкт-Петербург, Красносельский район, муниципальный округ Юго-Запад, жилой комплекс Морская миля
Автово
24 мин.
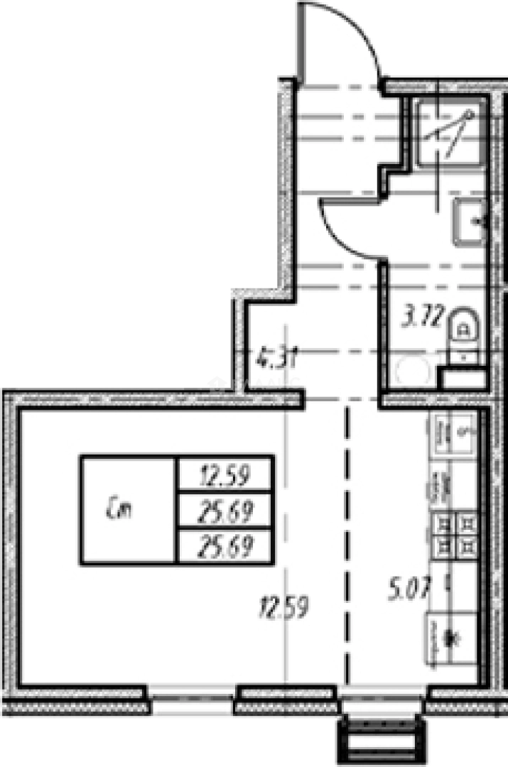
25.69 м²
Общая площадь
17.66 м²
Жилая площадь
2 из 25
Этаж
Описание
В ЖК предложено множество планировочных решений: в наличии квартиры, как классического типа, так и европланировки. Среди них представлены квартиры с видом на Финский залив. Они сдаются с чистовой отделкой и высотой потолков 2,55 метра.
В состав комплекса входит школа на 825 мест и детский сад на 420 мест. На 1 этажах предусмотрены коммерческие помещения. Дворы закрыты от машин. На всей территории комплекса разработана безбарьерная среда. Спроектирован пешеходный бульвар с тенистыми аллеями, уютными лаунж-зонами, плей-хабами и активити-зонами. Высажены кустарники, деревья и многолетние растения.
Жилой комплекс расположен в Красносельском районе на пересечении улиц Маршала Казакова и проспекта Маршала Жукова. В пешей доступности находятся супермаркеты и ТРК. В 30 минутах транспортом расположены достопримечательности Стрельны и Петергофа. Выезд на ЗСД, Метро «Автово» в 10 минутах транспортом.
О квартире
Общая площадь
25.69 м²
Жилая площадь
17.66 м²
Площадь комнат
17.66 м²
Высота потолков
2.55 м
Этаж
2
Окна выходят
На улицу
О доме
Год постройки
2026
Этажность
25
Материал постройки
Панельный
Парковка
Многоуровневая
Расположение
Россия, Санкт-Петербург, Красносельский район, муниципальный округ Юго-Запад, жилой комплекс Морская миля
Автово
24 мин.
Проспект Ветеранов
4 мин.
Ленинский проспект
4 мин.
Кировский завод
4 мин.
Нарвская
8 мин.
Парк Победы
8 мин.
Московская
8 мин.
Электросила
8 мин.
Ипотечный калькулятор
Заполните 1 анкету — получите предложения от десятков банков на специальных условиях
Программа ипотеки
Стоимость жилья, ₽
Первый взнос, ₽
Срок кредита
от 5.75%
Ставка
от 48 592 ₽
Платеж в месяц
Расчёт носит информационный характер и не является публичной офертой
Похожие объекты






1-комн. квартира, 27,4 м², 15/19 эт.
Автово
6 мин.






1-комн. квартира, 28,0 м², 13/19 эт.
Автово
6 мин.














Студия, 25,9 м², 8/25 эт.
Автово
25 мин.
Консультант по новостройкам
7 723 878 ₽
300 657 ₽/м²

































