Продается 3-комн. квартира, 64.91 м²
Россия, Санкт-Петербург, улица Академика Константинова, 1к1
Академическая
13 мин.
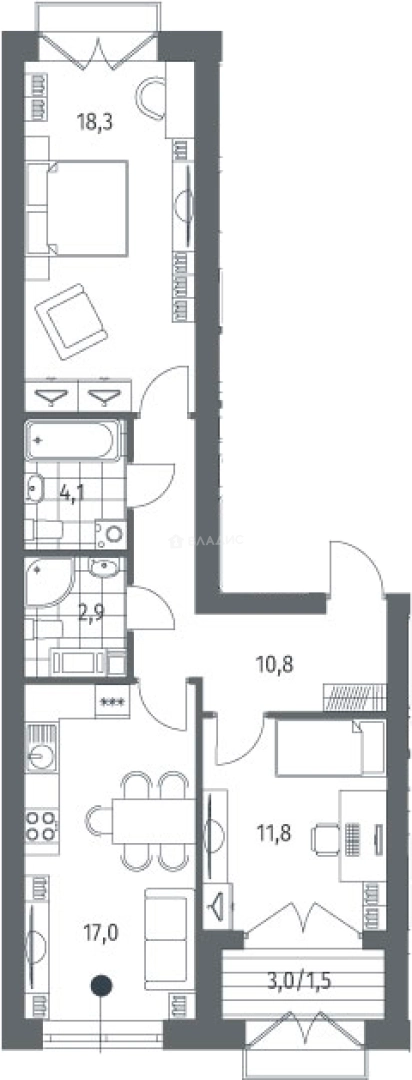
64.91 м²
Общая площадь
30.08 м²
Жилая площадь
17.02 м²
Площадь кухни
9 из 13
Этаж
Описание
В ЖК «Наука» представлено множество планировочных решений: от классических однокомнатных до 4-ех комнатных квартир европейского формата. Сдаются они без отделки и потолками высотой 2,72 метра. Можно подобрать квартиру с французским балконом или с панорамным эркером.
Территория проекта «Наука» выполнена по концепции «двор без машин». На первых этажах расположены коммерческие помещения. Во дворах жилого комплекса реализовано единое благоустройство — проект «Фантастический лес» с 8 игровыми зонами и спортивной площадкой. Во дворе первого корпуса расположена большая детская площадка «Крупная рыба». Для владельцев автомобилей предусмотрен подземный паркинг.
ЖК «Наука» расположен в Калининском районе. В пешей доступности находятся магазины, школы, детские сады, медицинские учреждения, Вавиловский сквер, сад Бенуа и парк сосновка. До метро «Академическая» и «Политехническая» — 10 минут пешком.
О квартире
Общая площадь
64.91 м²
Жилая площадь
30.08 м²
Площадь кухни
17.02 м²
Площадь комнат
11.78+18.3 м²
Высота потолков
2.74 м
Этаж
9
Окна выходят
На улицу
О доме
Год постройки
2025
Этажность
13
Материал постройки
Кирпичный
Материал перекрытий
Монолитные
Отопление
Центральное
Парковка
Подземная
Расположение
Россия, Санкт-Петербург, улица Академика Константинова, 1к1
Академическая
13 мин.
Политехническая
18 мин.
Площадь Мужества
30 мин.
Гражданский проспект
4 мин.
Удельная
6 мин.
Озерки
6 мин.
Проспект Просвещения
7 мин.
Лесная
7 мин.
Ипотечный калькулятор
Заполните 1 анкету — получите предложения от десятков банков на специальных условиях
Программа ипотеки
Стоимость жилья, ₽
Первый взнос, ₽
Срок кредита
от 5.75%
Ставка
от 134 233 ₽
Платеж в месяц
Расчёт носит информационный характер и не является публичной офертой
Консультант по новостройкам
21 337 000 ₽
328 717 ₽/м²





































