Продается 3-комн. квартира, 69.79 м²
Россия, Санкт-Петербург, ЖК Наука
Академическая
15 мин.
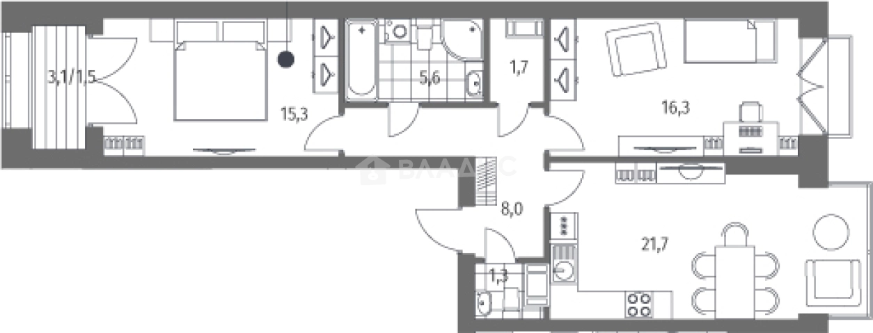
69.79 м²
Общая площадь
31.58 м²
Жилая площадь
21.7 м²
Площадь кухни
13 из 13
Этаж
Описание
В ЖК «Наука» представлено множество планировочных решений: от классических однокомнатных до 4-ех комнатных квартир европейского формата. Сдаются они без отделки и потолками высотой 2,72 метра. Можно подобрать квартиру с французским балконом или с панорамным эркером.
Территория проекта «Наука» выполнена по концепции «двор без машин». На первых этажах расположены коммерческие помещения. Во дворах жилого комплекса реализовано единое благоустройство — проект «Фантастический лес» с 8 игровыми зонами и спортивной площадкой. Во дворе первого корпуса расположена большая детская площадка «Крупная рыба». Для владельцев автомобилей предусмотрен подземный паркинг.
ЖК «Наука» расположен в Калининском районе. В пешей доступности находятся магазины, школы, детские сады, медицинские учреждения, Вавиловский сквер, сад Бенуа и парк сосновка. До метро «Академическая» и «Политехническая» — 10 минут пешком.
О квартире
Общая площадь
69.79 м²
Жилая площадь
31.58 м²
Площадь кухни
21.7 м²
Площадь комнат
16.32+15.26 м²
Высота потолков
2.7199999999999998 м
Этаж
13
Окна выходят
На улицу
О доме
Год постройки
2024
Этажность
13
Материал постройки
Кирпичный
Материал перекрытий
Монолитные
Отопление
Центральное
Парковка
Подземная
Расположение
Россия, Санкт-Петербург, ЖК Наука
Академическая
15 мин.
Политехническая
19 мин.
Гражданский проспект
30 мин.
Площадь Мужества
4 мин.
Удельная
6 мин.
Озерки
6 мин.
Проспект Просвещения
6 мин.
Девяткино
7 мин.
Ипотечный калькулятор
Заполните 1 анкету — получите предложения от десятков банков на специальных условиях
Программа ипотеки
Стоимость жилья, ₽
Первый взнос, ₽
Срок кредита
от 5.75%
Ставка
от 145 161 ₽
Платеж в месяц
Расчёт носит информационный характер и не является публичной офертой
Консультант по новостройкам
23 074 000 ₽
330 621 ₽/м²










































