Продается 2-комн. квартира, 52.15 м²
Россия, Санкт-Петербург, Ремесленная улица
Чкаловская
16 мин.
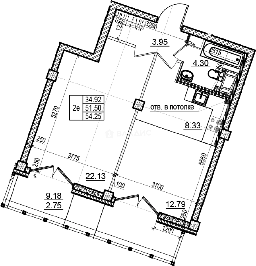
52.15 м²
Общая площадь
22.13 м²
Жилая площадь
21.12 м²
Площадь кухни
8 из 8
Этаж
Описание
Покупателям в ЖК «Neva Residence» предложено множество планировочных решений: в наличии квартиры, как классического типа, так и европланировки. А на верхних этажах представлены квартиры с террасами и зимними садами. На лоджиях и балконых установлен теплый алюминиевый профиль с однокамерным стеклопакетом, который позволяет без дополнительного утепления наслаждаться видами и использовать их круглый год.Из окон открываются виды на Малую Неву и историческую застройку Васильевского острова. Они передаются дольщикам без отделки.
В состав комплекса входит детский сад. Для автовладельцев предусмотрен подземный паркинг, на территории которого действует усилитель сигнала GSM и 4G. Также для жителей спроектированы колясочные и келлеры для хранения сезонных вещей. Территория комплекса закрыта от машин и случайных прохожих, и ведется круглосуточное видеонаблюдение. Спроектирована собственная благоустроенная прогулочная набережная по уникальному проекту с озеленением и устройством малых архитектурных форм.
Жилой комплекс расположен на Петровском острове в районе с развитой инфраструктурой: здесь работают детские сады, школы магазины, спортивные центры, конный клуб и стадион «Петровский». В пешей доступности находится Большой Петровский парк с прудом и зонами отдыха.
О квартире
Общая площадь
52.15 м²
Жилая площадь
22.13 м²
Площадь кухни
21.12 м²
Площадь комнат
22.13 м²
Высота потолков
3.15 м
Подъезд
1
Этаж
8
Окна выходят
На улицу
О доме
Год постройки
2023
Этажность
8
Материал постройки
Кирпично-монолитный
Материал перекрытий
Монолитные
Отопление
Центральное
Пассажирских лифтов
1
Грузовых лифтов
1
Парковка
Подземная
Расположение
Россия, Санкт-Петербург, Ремесленная улица
Чкаловская
16 мин.
Спортивная
17 мин.
Крестовский остров
19 мин.
Василеостровская
22 мин.
Приморская
27 мин.
Петроградская
4 мин.
Горьковская
4 мин.
Чёрная речка
5 мин.
Ипотечный калькулятор
Заполните 1 анкету — получите предложения от десятков банков на специальных условиях
Программа ипотеки
Стоимость жилья, ₽
Первый взнос, ₽
Срок кредита
от 5.75%
Ставка
от 251 678 ₽
Платеж в месяц
Расчёт носит информационный характер и не является публичной офертой
Похожие объекты










2-комн. квартира, 45,6 м², 7/9 эт.
Чкаловская
8 мин.










2-комн. квартира, 52 м², 5/9 эт.
Чкаловская
8 мин.










2-комн. квартира, 48 м², 8/9 эт.
Чкаловская
8 мин.










2-комн. квартира, 55,5 м², 6/9 эт.
Чкаловская
8 мин.
Консультант по новостройкам
40 005 630 ₽
767 127 ₽/м²







